Lot 4 Sherwood PKWY, Sault Ste. Marie, Ontario P6C3A8

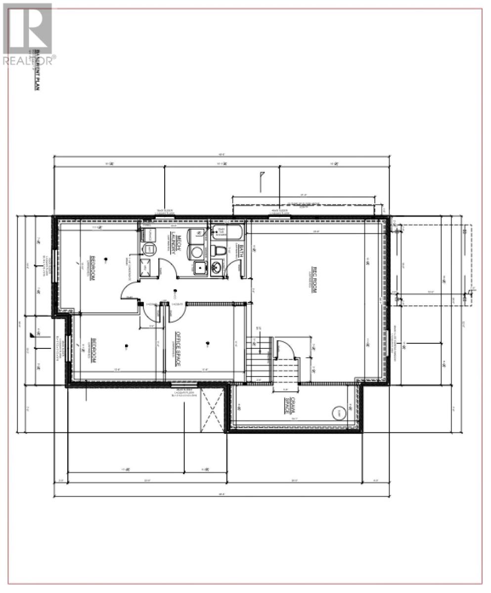
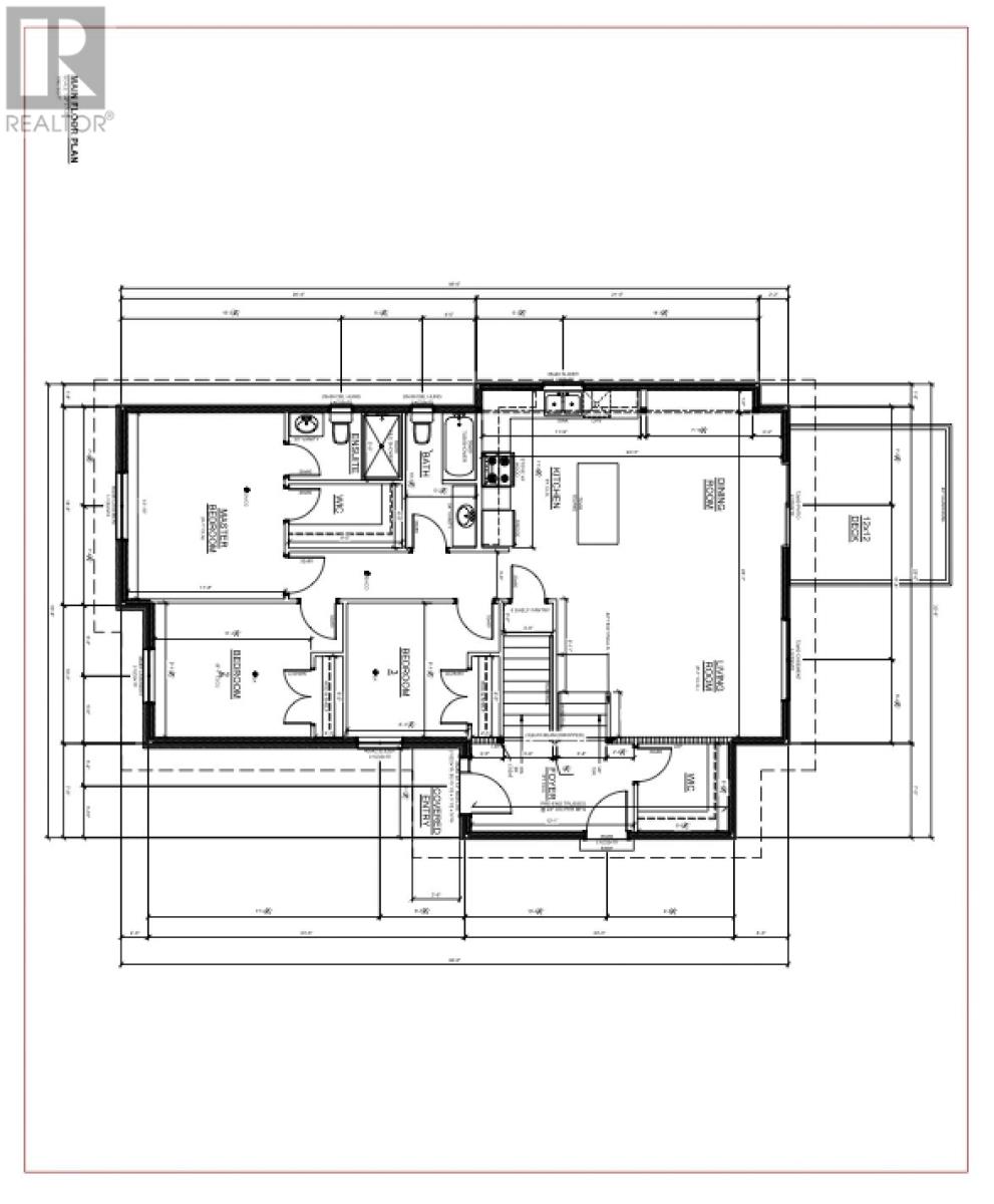
Welcome to The Serinata, a 1,392 sq ft bungalow located in sought-after Sherwood Heights. Built by SLV Homes, this home offers a smart, functional layout, modern finishes, and quality construction throughout. Enjoy a bright, open-concept kitchen, dining, and living space—ideal for daily living and entertaining. The kitchen includes an island with breakfast bar seating and opens onto a 12x12 deck, perfect for outdoor enjoyment. The main floor features three bedrooms, including a primary suite with walk-in closet and 3-piece ensuite. A 4-piece main bath serves the additional bedrooms, while a welcoming front foyer and walk-in closet complete the space. Interior highlights include 9-foot ceilings, custom kitchen cabinetry and vanities, modern flooring and countertops, and your choice of paint colours from a builder-approved palette. Built for comfort and efficiency, the home includes a high-efficiency gas furnace, central air conditioning, R-60 attic insulation, 200-amp service, and a gas BBQ hook-up. The unfinished basement includes a rough-in for a 3-piece bathroom and layout options for a future rec room, fourth bedroom, and flex space. Exterior finishes include brick accents, vinyl siding, gravel driveway, sodded yard (up to 40 ft at rear), and full Tarion Warranty coverage. The Serinata - Smart living starts here. Price includes HST. Home is nearing completion- main photo AI generated.
Property Specifications
Comprehensive breakdown of features and details.
Interior Details
Building & Exterior
Land & Location
Listing & Financials
Other Specifications
For Sale
$649,900
Beds
3
Baths
2
Living Area
1,392 sqft
Lot Size
-
Property Type
Single Family
Year Built
-