637 Topsail Road, St. John's, Newfoundland & Labrador A1E2E1

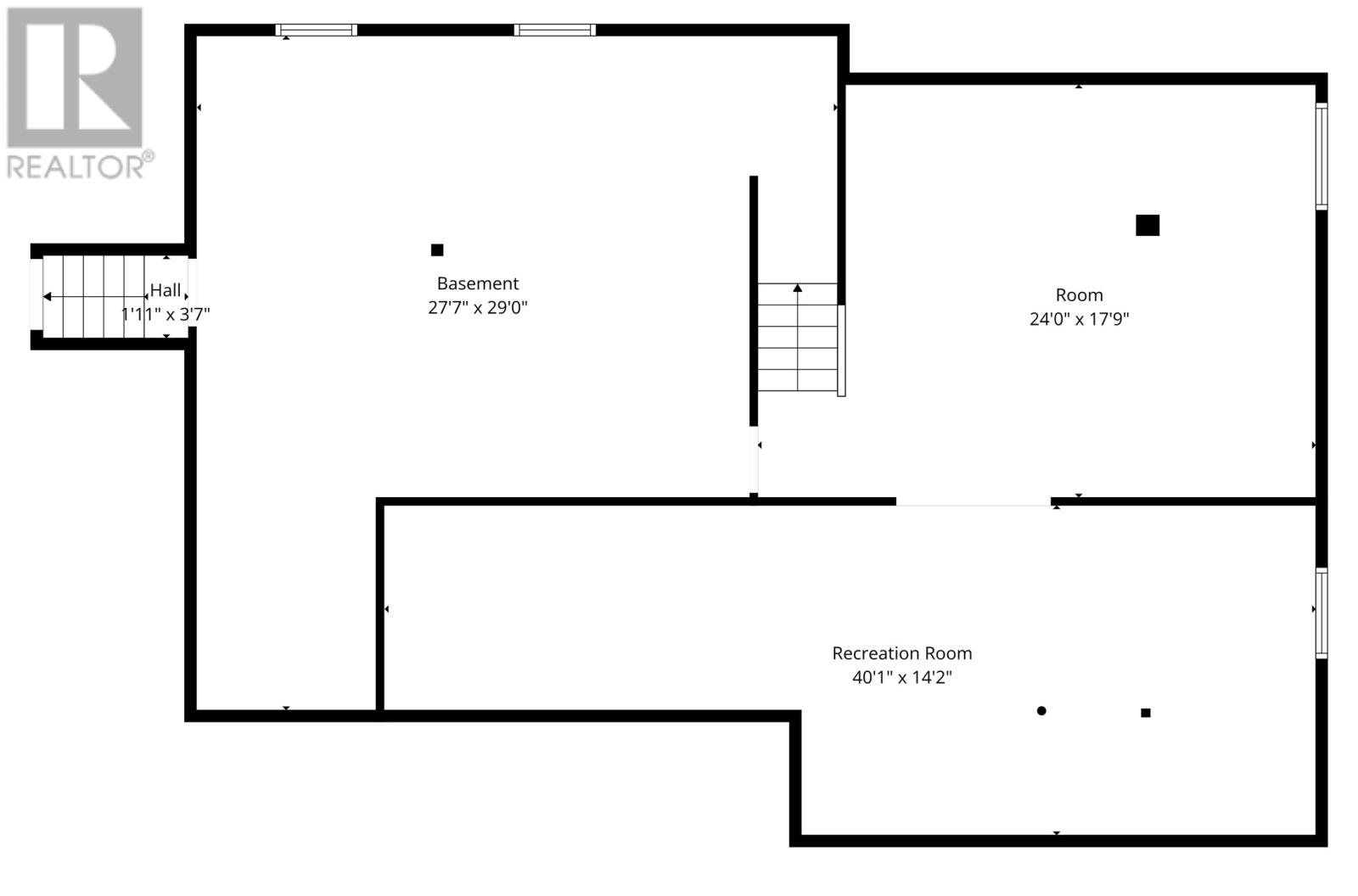
Welcome to 637 Topsail Road — a charming 1960s-style bungalow set on an oversized mature lot. This well-maintained 4-bedroom, 1.5-bath home blends classic character with exceptional potential, making it an ideal choice for first-time buyers, growing families, or anyone seeking a solid property in a convenient location. Step inside to find a warm and inviting layout, true to its mid-century design. The main level features a bright living area with large windows, generously sized bedrooms, and a functional kitchen ready for your personal touch. Downstairs offers additional living space, storage, and flexibility—perfect for a rec room, and entertaining with a huge floor shuffle board! Outside, the expansive mature lot is a standout. Lined with established trees and offering plenty of green space, it provides a private retreat with room for gardening, play, or future development options. Located close to shopping, schools, parks, and major amenities, this property delivers both comfort and convenience with exceptional long-term value. Don’t miss this opportunity to own a classic St. John’s bungalow on a premium lot—full of charm today and potential for tomorrow.
Property Specifications
Comprehensive breakdown of features and details.
Interior Details
Building & Exterior
Land & Location
Listing & Financials
Other Specifications
For Sale
$439,900
Beds
4
Baths
2
Living Area
3,559 sqft
Lot Size
-
Property Type
House
Year Built
1962