Lot 6 Jenny's Way, Logy Bay-Middle Cove-Outer Cove, Newfoundland & Labrador A1K0M4

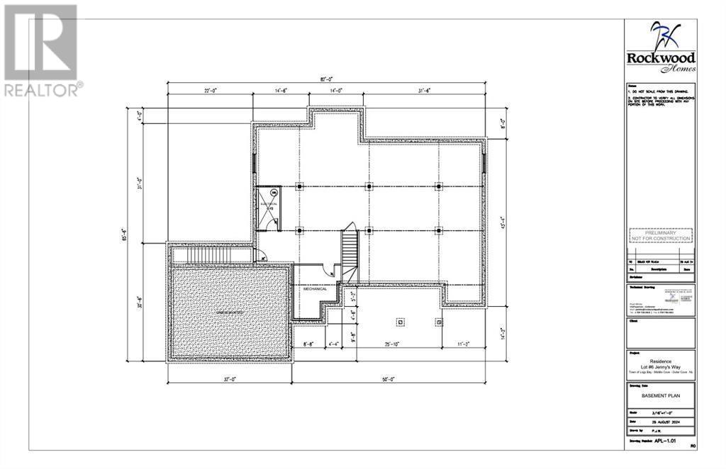
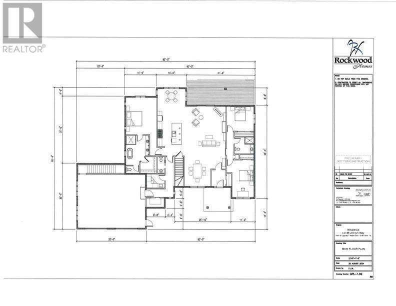
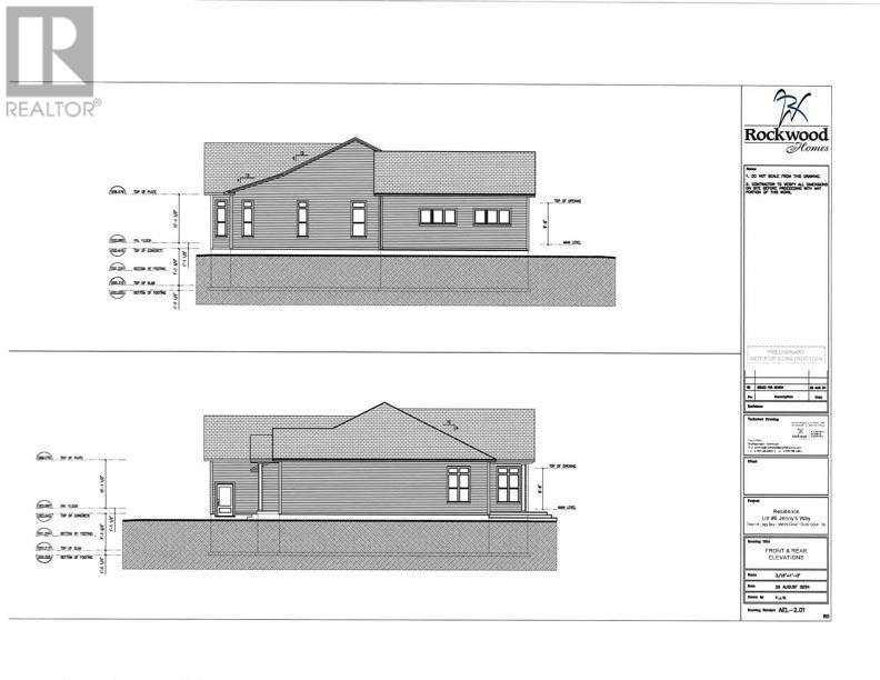
Another beautiful home to be built by Rockwood Homes. Welcome to your future home! This thoughtfully designed one-level bungalow offers the perfect blend of comfort and functionality. With three spacious bedrooms, this home is ideal for families, or those looking to downsize without sacrificing space. The open-concept living area is perfect for modern living, offering plenty of natural light and a seamless flow between the kitchen, dining, and living spaces. The kitchen features sleek countertops, and ample cabinetry, making it a chef’s delight. The unfinished basement provides endless possibilities for customization—create the ultimate entertainment space, a home gym, or additional living quarters—the choice is yours! Located in a tranquil neighbourhood, this home offers easy access to local amenities like awesome schools, parks, recreation, nice restaurants, walking trails, and lots more making it a perfect place to grow and thrive. Dwelling is to be registered under the Atlantic Home Warrenty 10 year/extended warranty program. 60 gallon hot water tank, 400 amp, custom tiles in master, roof has a 25 year warranty, 10ft ceiling, and all windows are energy efficient(low-E Argon filled). Don’t miss the opportunity to make this brand-new home your own!
Property Specifications
Comprehensive breakdown of features and details.
Interior Details
Building & Exterior
Land & Location
Listing & Financials
Other Specifications
For Sale
$1,349,000
Beds
3
Baths
3
Living Area
5,166 sqft
Lot Size
-
Property Type
House
Year Built
2025