16395 HIGHWAY 2 HIGHWAY, Quinte West (Murray Ward), Ontario K8V5P7

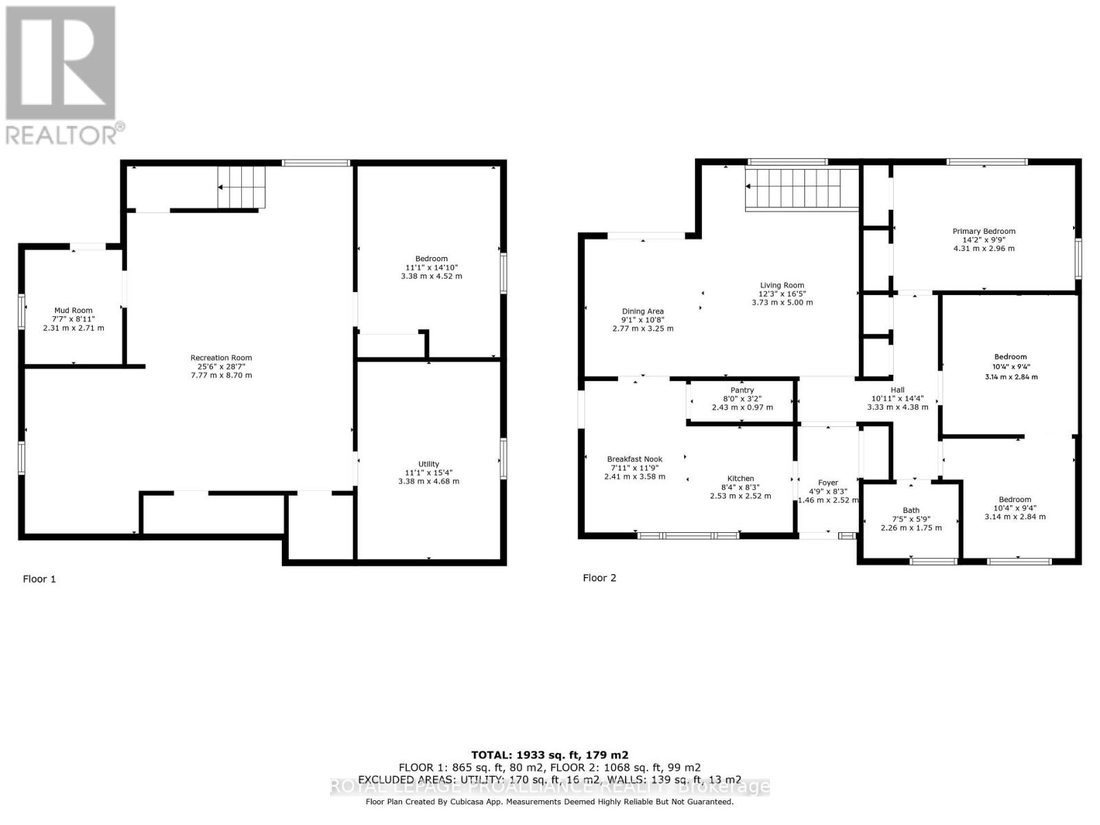
Discover relaxed country living in this inviting 3+1 bedroom bungalow set on a generously sized rural lot. Offering approximately 2,000 sq. ft. of finished space, this home delivers a bright, functional layout and plenty of room to enjoy both indoors and out! Perfectly situated on just over an acre between Trenton and Brighton, this home has plenty of room for families or retirees looking for space, yet located minutes to all amenities. Enjoy a short drive to CFB Trenton, downtown Quinte West and Brighton and quick access to the 401 corridor. The bright main level features a sun-filled living and dining area enhanced by large windows. The well-designed galley kitchen includes a large walk-in pantry and a cozy spot for casual meals. The generous Primary bedroom offers two closets, providing plenty of storage. Two additional bedrooms can serve as guest rooms, a den or ideal work-from-home office space. A well-appointed 4-piece bathroom, featuring granite countertops, completes the main floor. The finished lower level expands your living options with a spacious recreation room-ideal for movie nights or gatherings-plus a fourth bedroom for teens, guests or an additional multipurpose room perfect for hobbies or workouts. A practical mudroom entrance adds to the ease of everyday living. The walk-out basement with a separate entrance presents excellent in-law suite potential, featuring newer flooring and a bright, welcoming layout. The backyard patio sets the stage for barbecues and summer entertaining, with plenty of space for gardens and play areas. The covered carport provides parking out of the elements plus convenient interior access to the kitchen. If you're seeking country living with nearby city conveniences, this is the one! Move-in ready and full of potential....don't miss it!
Property Specifications
Comprehensive breakdown of features and details.
Interior Details
Building & Exterior
Land & Location
Utilities & Services
Listing & Financials
Other Specifications
For Sale
$524,900
Beds
4
Baths
1
Living Area
-
Lot Size
-
Property Type
House
Year Built
-