2 7510 CURRAGH AVENUE, Burnaby, British Columbia V5J4W2

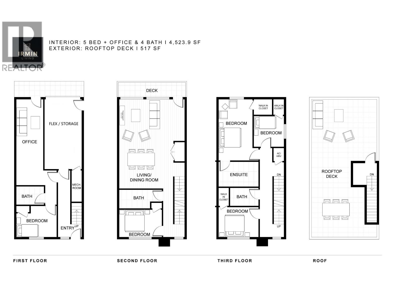
BUILT FOR A BETTER LIVING! A refined presale duplex residence offering thoughtful design, energy-graded performance, and exceptional flexibility in a quiet Metrotown neighborhood. Intelligent spatial planning creates private, comfortable areas for every family member, complemented by air conditioning and premium appliances. A distinctive rooftop patio enhances the home with additional outdoor living, perfect for relaxation or entertaining. The ground level provides valuable opportunities for limited customization during presale, allowing you to tailor or customize the space to your needs. Walking distance to skytrain, shopping, restaurants, schools. A rare chance to own a well-crafted new home close to parks, schools, and daily amenities. *Future address will be 6118 Irmin St. Burnaby.
Property Specifications
Comprehensive breakdown of features and details.
Interior Details
Building & Exterior
Land & Location
Listing & Financials
Other Specifications
For Sale
$1,799,000
Beds
5
Baths
4
Living Area
2,262 sqft
Lot Size
10 sqft
Property Type
Duplex
Year Built
2026