4 OXFORD STREET, Ottawa, Ontario K1Y2R7

1 / 10
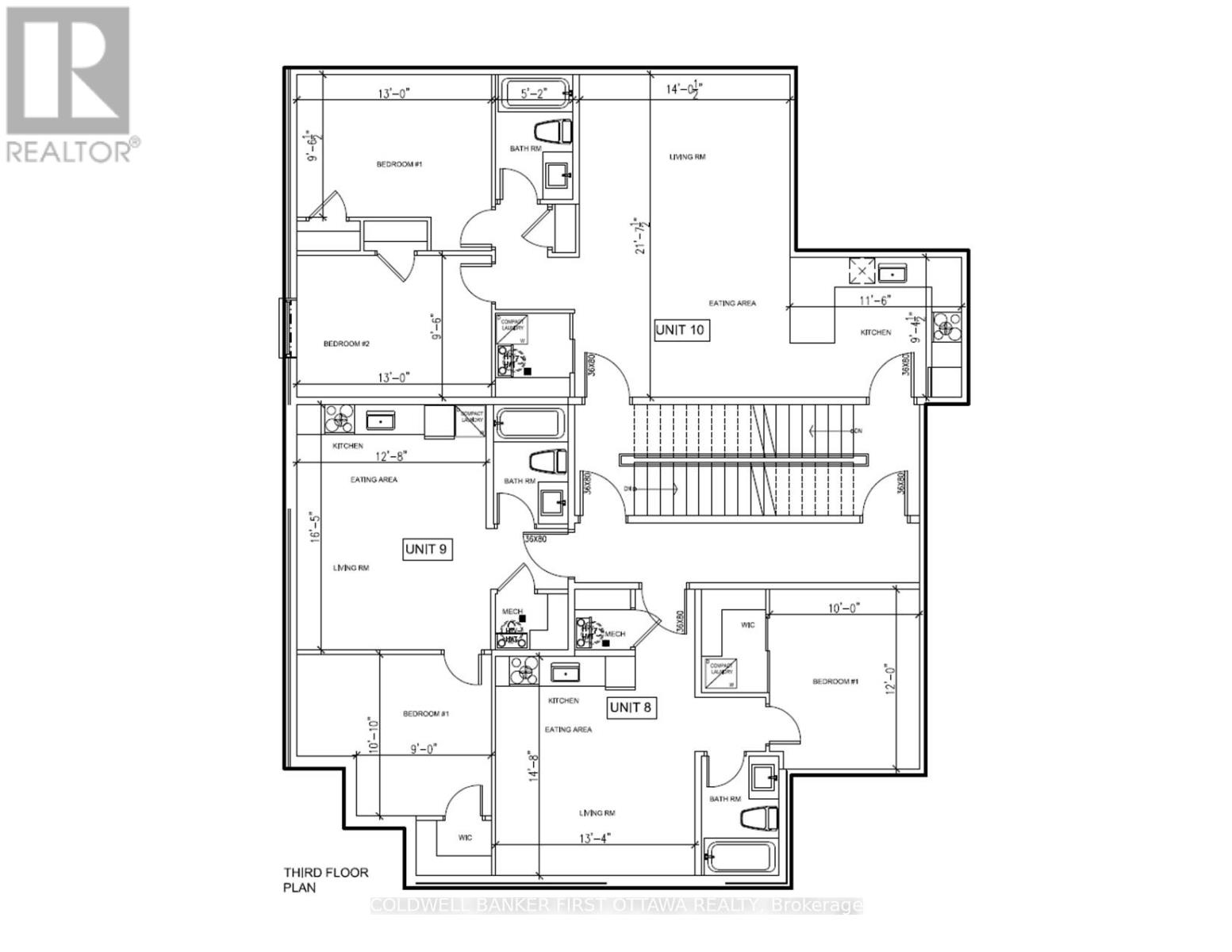
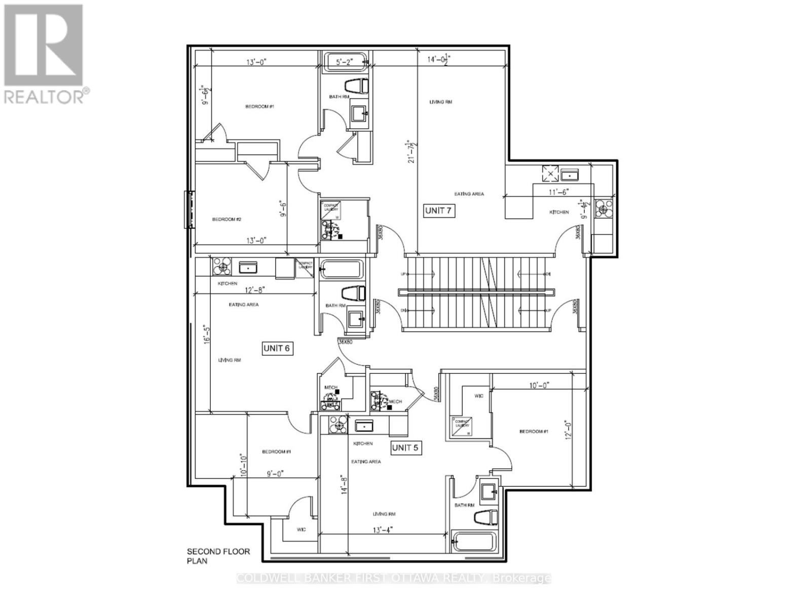
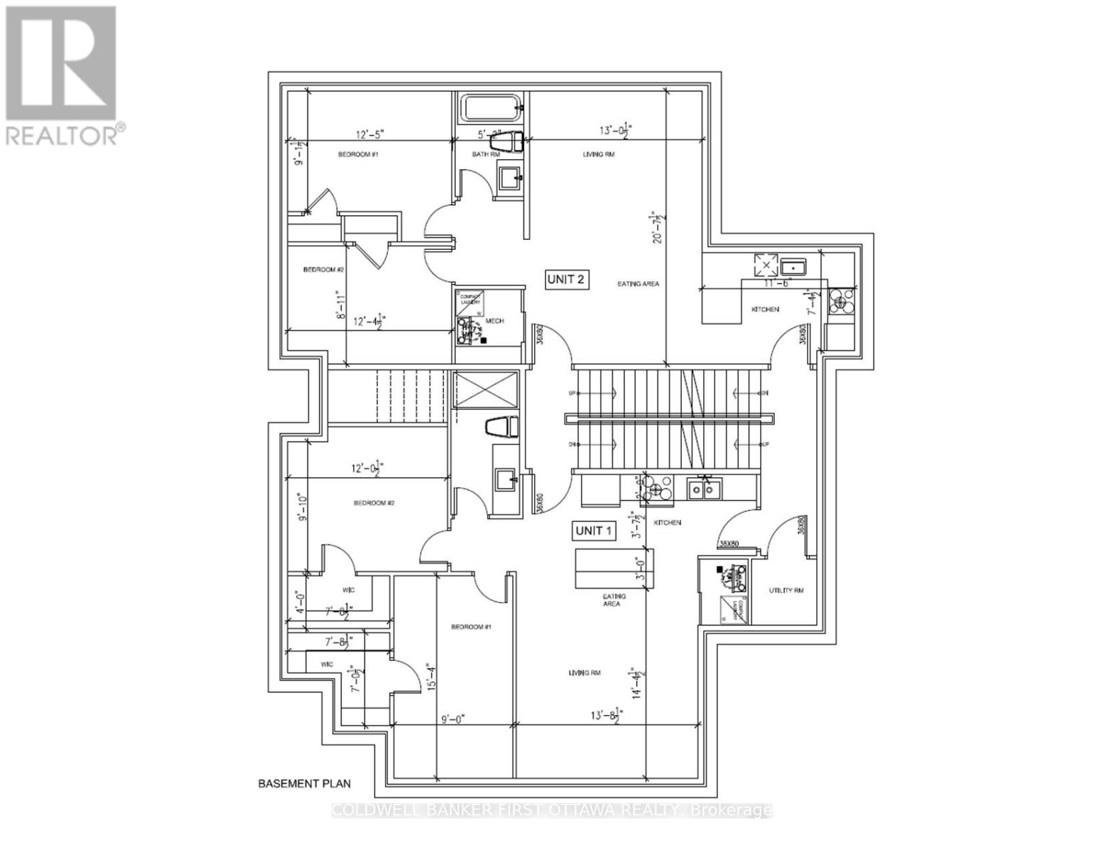
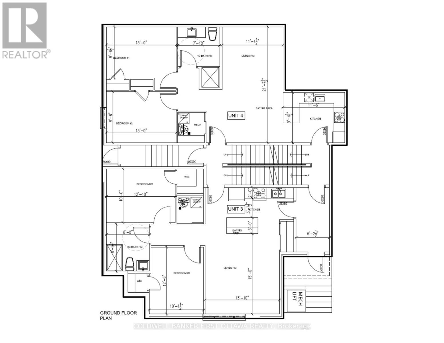
FABULOUS MULTI UNIT DEVELOPMENT OPPORTUNITY IN PRIME HINTONBURG! Corner lot with R4UB zoning steps to LRT, Wellington Village and Westboro. Don't let this small lot size fool you. Conceptual drawings in place for 10 unit building (6 x 2 bedroom, 4 X 1 bedroom) with 2 ground floor accessible units. Vendor is a reputable builder and can also build out for you.
Property Specifications
Comprehensive breakdown of features and details.
Interior Details
Bathrooms Total0
Land & Location
City Region4202 - Hintonburg
Frontage Length51.11 feet
Lot Size Dimensions51.93 x 60.45 FT
Utilities & Services
UtilitiesSewer, Electricity, Cable
Listing & Financials
Listing OfficeCOLDWELL BANKER FIRST OTTAWA REALTY
Originating System NameOttawa Real Estate Board
Other Specifications
CountryCanada
For Sale
$599,900
4 OXFORD STREET, Ottawa, Ontario K1Y2R7
Lot Size
51.93 x 60.45 FT
Property Type
Vacant Land
Year Built
-
Listing IDX12585258
Location & Map
Similar Homes You May Like
More Real Estate in Ontario
Ajax Real EstateBarrie Real EstateBrampton Real EstateGuelph Real EstateHamilton Real EstateKitchener Real EstateLondon Real EstateMarkham Real EstateMississauga Real EstateOakville Real EstatePickering Real EstateRichmond Hill Real EstateSt. Catharines Real EstateToronto Real EstateVaughan Real EstateWhitby Real Estate