415 Commonwealth Road Unit# 313, Kelowna, British Columbia V4V1P4

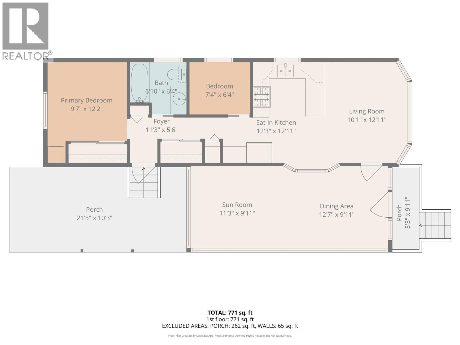
Cottage life awaits on Lake Lane at Holiday Park Resort! This beautifully maintained, original owner 2012 Modulux Design Park Model offers 778 sqft of comfortable year-round living with rare two-bedroom flexibility. Set near the shores of Ellison Lake, the home enjoys expansive lake and mountain views. Inside, the open layout features warm pine cabinetry, upgraded laminate and ceramic flooring, full-size laundry, hot water on demand, central furnace and A/C. The spacious king-sized primary bedroom provides excellent storage, while the second bedroom suits guests or a home office. A bright 4-season sunroom adds valuable extra living space. The 2,594 sqft lot is designed for easy Okanagan living with a double concrete pad, insulated skirting with storage, an extended covered patio, underground irrigation, ample parking, a golf-cart space, custom sunshade, and an insulated shed. Holiday Park Resort is an amenity-rich, gated community lifestyle with pools, hot tubs, pickleball courts, activity centres, walking paths, and 24/7 security. Maintenance fees ($5,762.72) cover water, sewer, garbage, snow removal, security, and full access to amenities. Short and long-term rentals are allowed, and pets are welcome. Registered federal prepaid lease to 2046. Located near the Kelowna airport, Okanagan Golf Club, UBCO, Big White, Sparkling Hill, and Lake Country, this is the perfect getaway, investment property, or full-time home where lake living truly shines. Don’t delay, call today!
Property Specifications
Comprehensive breakdown of features and details.
Interior Details
Building & Exterior
Land & Location
Listing & Financials
Other Specifications
For Sale
$395,500
Beds
2
Baths
1
Living Area
778 sqft
Lot Size
0.06 acres
Property Type
Park Model Mobile Home
Year Built
2012