#60 50565 RGE RD 245, Rural Leduc County, Alberta T4X0P5

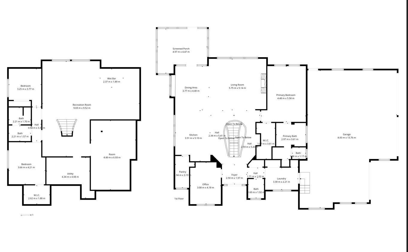
Welcome to Lukas Estates! Opening the door to the detail of this home will have you speechless. The beautiful coffered ceilings and elegant millwork will make you want to call this place home! The main floor offers a large open gourmet kitchen with a walk-in hidden pantry and wonderful hardwood floors! The luxurious primary suite has a huge walk in closet and the ensuite of your dreams. There is a large office space with built in storage. The basement is fully finished with two large bedrooms and a bathroom and to top it all off it has a theatre room and heated floors! The triple car garage is oversized for all your parking requirements. This property has a luxury rural feel with convenience of the city. Plant a vegetable garden, enjoy the beauty of the many planted trees, and the screened in porch!
Property Specifications
Comprehensive breakdown of features and details.
Interior Details
Building & Exterior
Land & Location
Listing & Financials
Other Specifications
For Sale
$1,150,000
Beds
3
Baths
3
Living Area
1,862 sqft
Lot Size
1.24 acres
Property Type
House
Year Built
2006