10 BELVEDERE PLACE, Brockville, Ontario K6V3A4

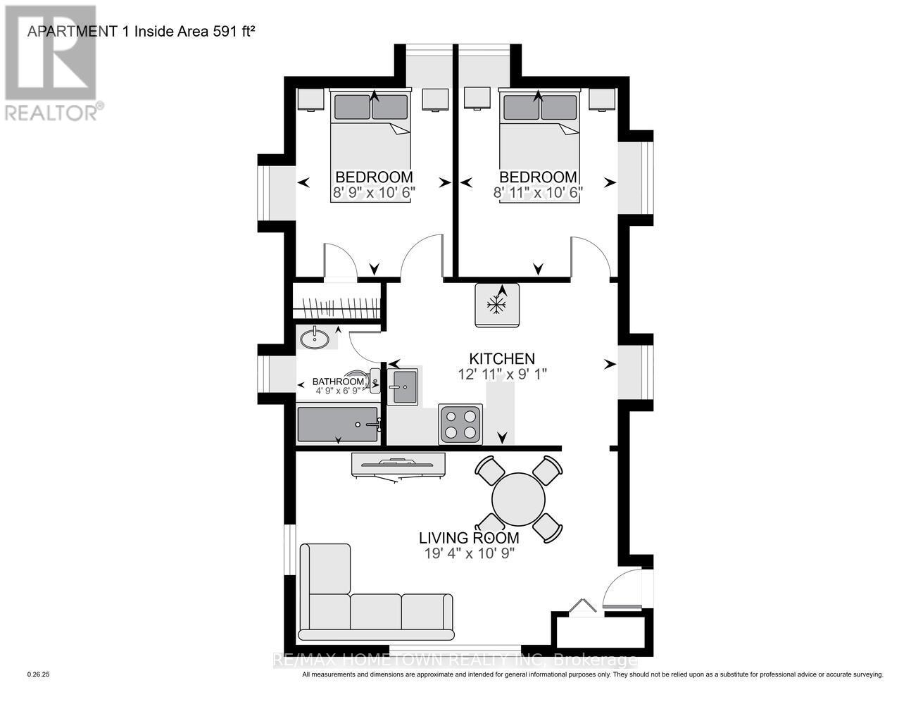
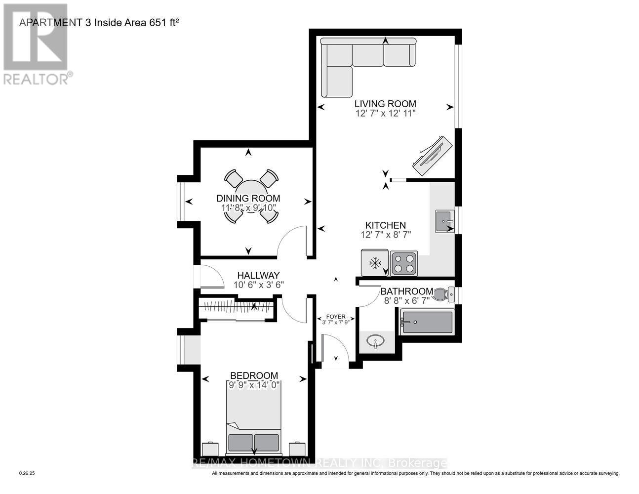
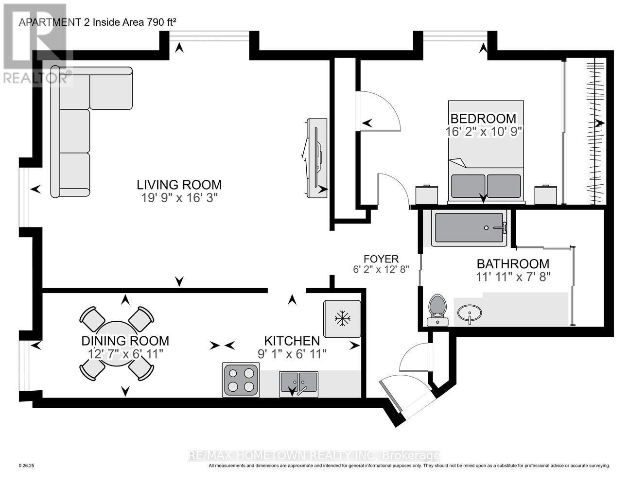
Take a look at this 12-unit building with six two-bedroom apartments and six one-bedroom apartments. One unit is all-inclusive, and every tenant has a dedicated parking space. All other tenants pay their own heat and hydro. Laundry facilities are available in the building, which adds convenience for tenants. The property sits in a lovely east-end neighborhood surrounded by single-family homes, with transit close by. Amenities are only a short drive away, and access to the 401 is quick and easy. This building offers strong upside and plenty of room for future income growth. All showings require at least 24 hours' notice.
Property Specifications
Comprehensive breakdown of features and details.
Interior Details
Land & Location
Listing & Financials
Other Specifications
For Sale
$1,250,000
Beds
-
Baths
-
Living Area
1 sqft
Lot Size
0.551 acres
Property Type
Multi-Family
Year Built
-