Lot 10 Bezanson Drive, Berwick, Nova Scotia B0P1E0

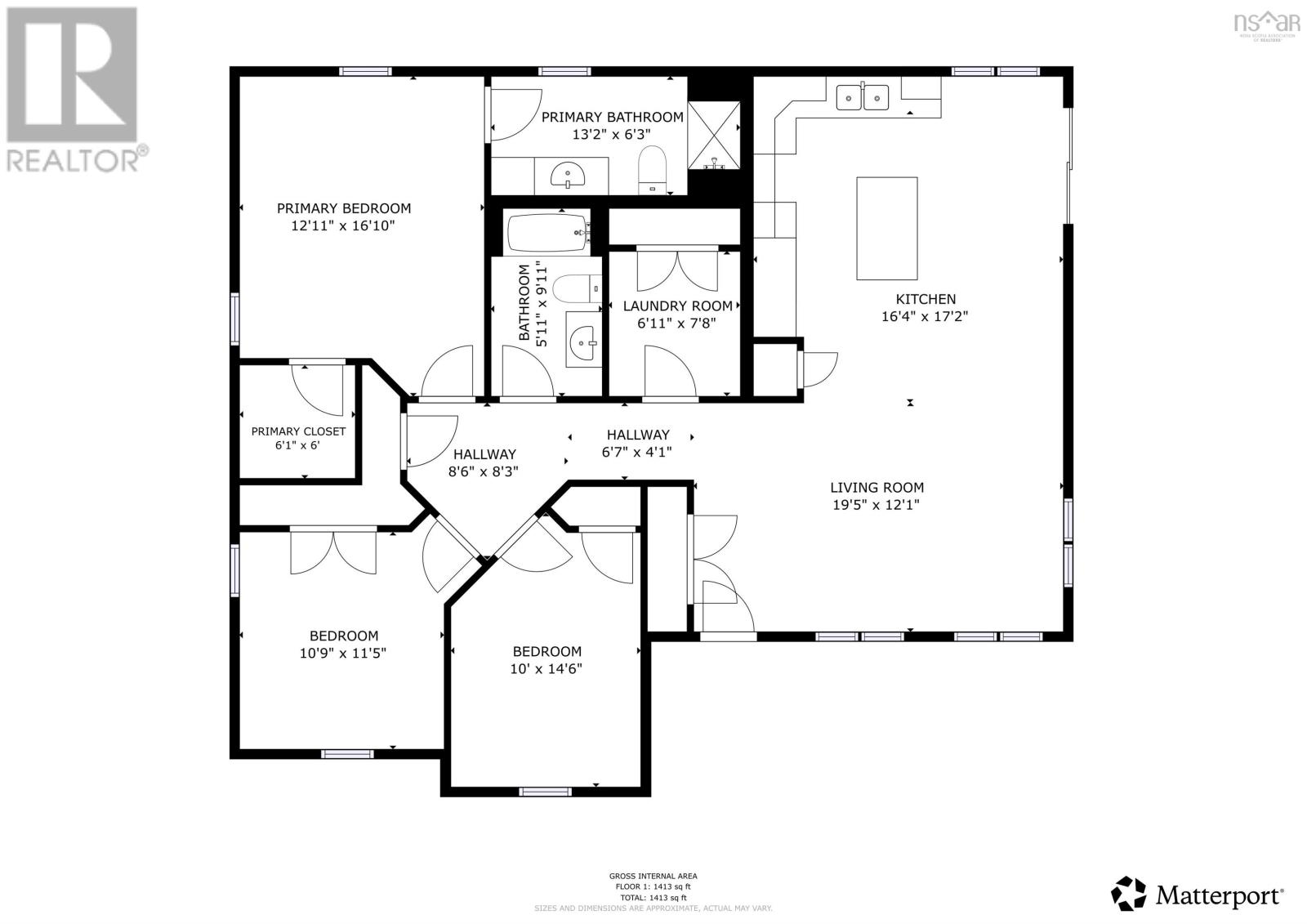
Welcome to 10 Bezanson Drive, a brand new bungalow constructed by Forsythe Homes Ltd. that is literally located within the shadow of the Kings Mutual Century Centre! This wonderfully appointed home is built on a slab and features a modern layout with three large bedrooms that will suit both the growing family as well as those looking to downsize to one level living. This new section of Bezanson Drive features underground power and several new high-end homes, and the property is already wired for the addition of a garage should the new owners wish to construct one. This open concept design offers lots of natural light and features a wrap around deck and sliding glass doors that provide easy access to the deck from the Kitchen to make outdoor BBQs and entertaining a breeze. Economically heated and cooled with baseboard heat and two ductless heat pumps, this home is also covered by the Atlantic New Home Warranty Program. A freshly paved double driveway and new baby barn at the back property are included, and with the amenities of Berwick within walking distance, this is your chance to own a brand new home in one of the most sought after areas - so don't wait, book your showing today!
Property Specifications
Comprehensive breakdown of features and details.
Interior Details
Building & Exterior
Land & Location
Listing & Financials
Other Specifications
For Sale
$499,000
Beds
3
Baths
2
Living Area
1,413 sqft
Lot Size
0.319 acres
Property Type
House
Year Built
-