46 ADELENE CRESCENT, St. Catharines (Glendale/Glenridge), Ontario L2T3C8

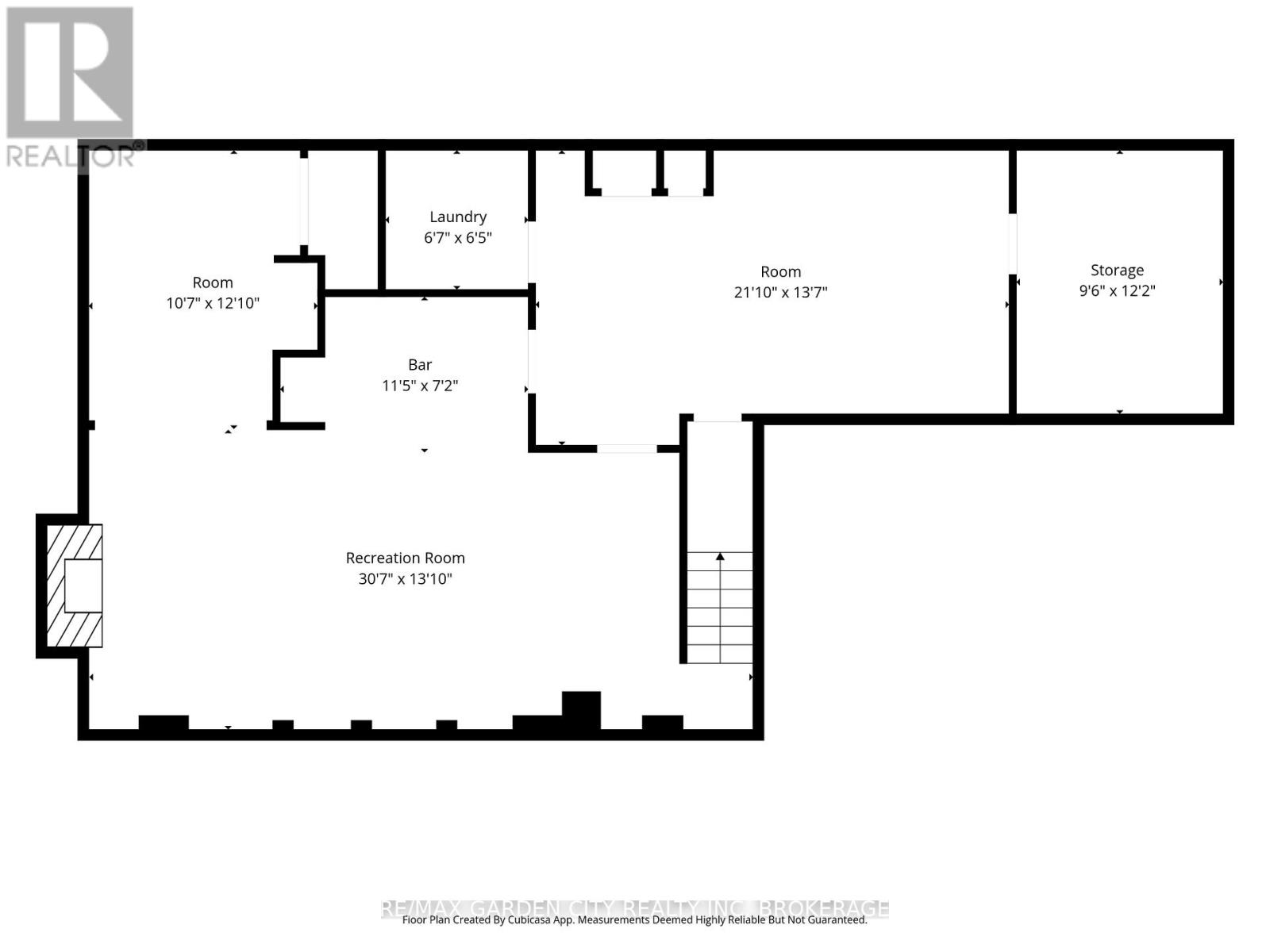
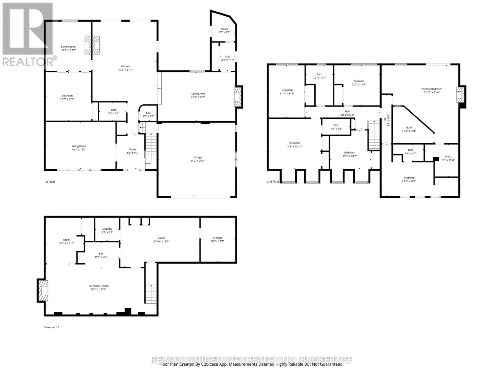
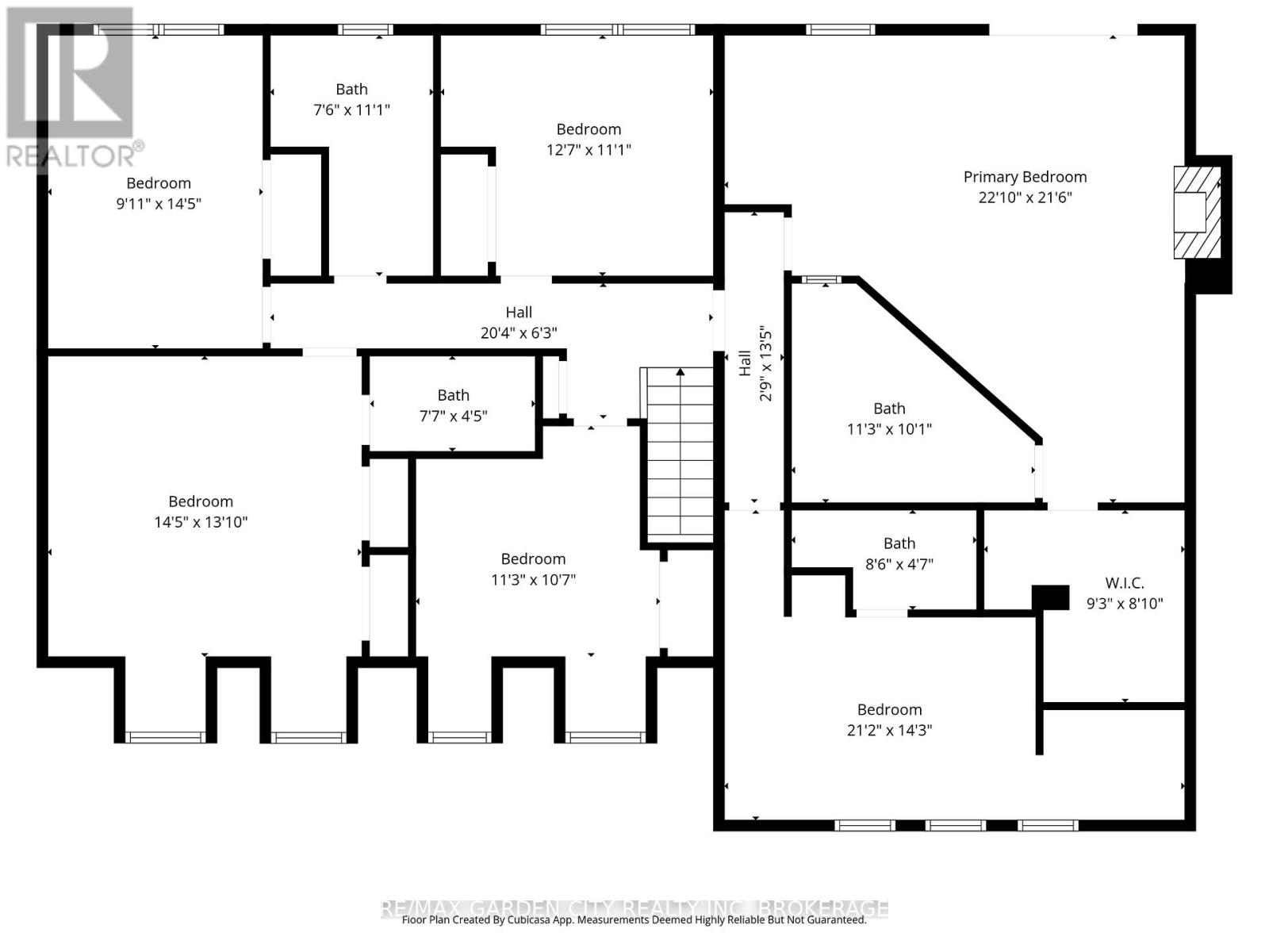
Exceptional 6-bedroom, 5-bathroom executive home in South St. Catharines, offering over 3,400 sq ft above grade on a premium 66 x 251 ft ravine lot with no rear neighbours, backing onto a green space paradise with in-ground pool. Well renovated between 2019-2025, this property provides outstanding space, privacy, and extensive upgrades throughout.The main floor features a bright home office with backyard views, a private living room with fireplace, a separate recreation/sitting area, and a main-floor sauna with direct outdoor access. The open kitchen offers quartz countertops, a large island, updated cabinetry, and a spacious dining area with oversized patio doors leading to the private backyard with an in-ground concrete pool. A convenient main-floor laundry and shower room complete this level.The second floor offers two unique primary suites. The west-facing suite includes vaulted ceilings, a fireplace, walk-in closet, private balcony, and renovated ensuite with skylight. The east-facing suite provides generous space and morning light. Three additional bedrooms feature private ensuites, and a large 4-piece bathroom services the remaining bedroom. The finished basement includes a recreation room, storage, and a second laundry area. Major updates include full second-floor renovation; multiple bathroom remodels; new kitchen (2021); new staircase, flooring, trims, casings, and baseboards; attic insulation and HVAC upgrades with humidifier and electric air cleaner (2019); spray-foam insulation above the garage; driveway rebuild; new fencing; artificial turf; shed foundation; extensive pool repairs and repainting; and new garage doors (2025). Premium located near the Pen Centre, Brock University, Highs chools, Ridley College, hospital, and major amenities.
Property Specifications
Comprehensive breakdown of features and details.
Interior Details
Building & Exterior
Land & Location
Listing & Financials
Other Specifications
For Sale
$1,249,000
Beds
6
Baths
6
Living Area
-
Lot Size
-
Property Type
House
Year Built
-