14165 60A AVENUE, Surrey, British Columbia V3X1C3

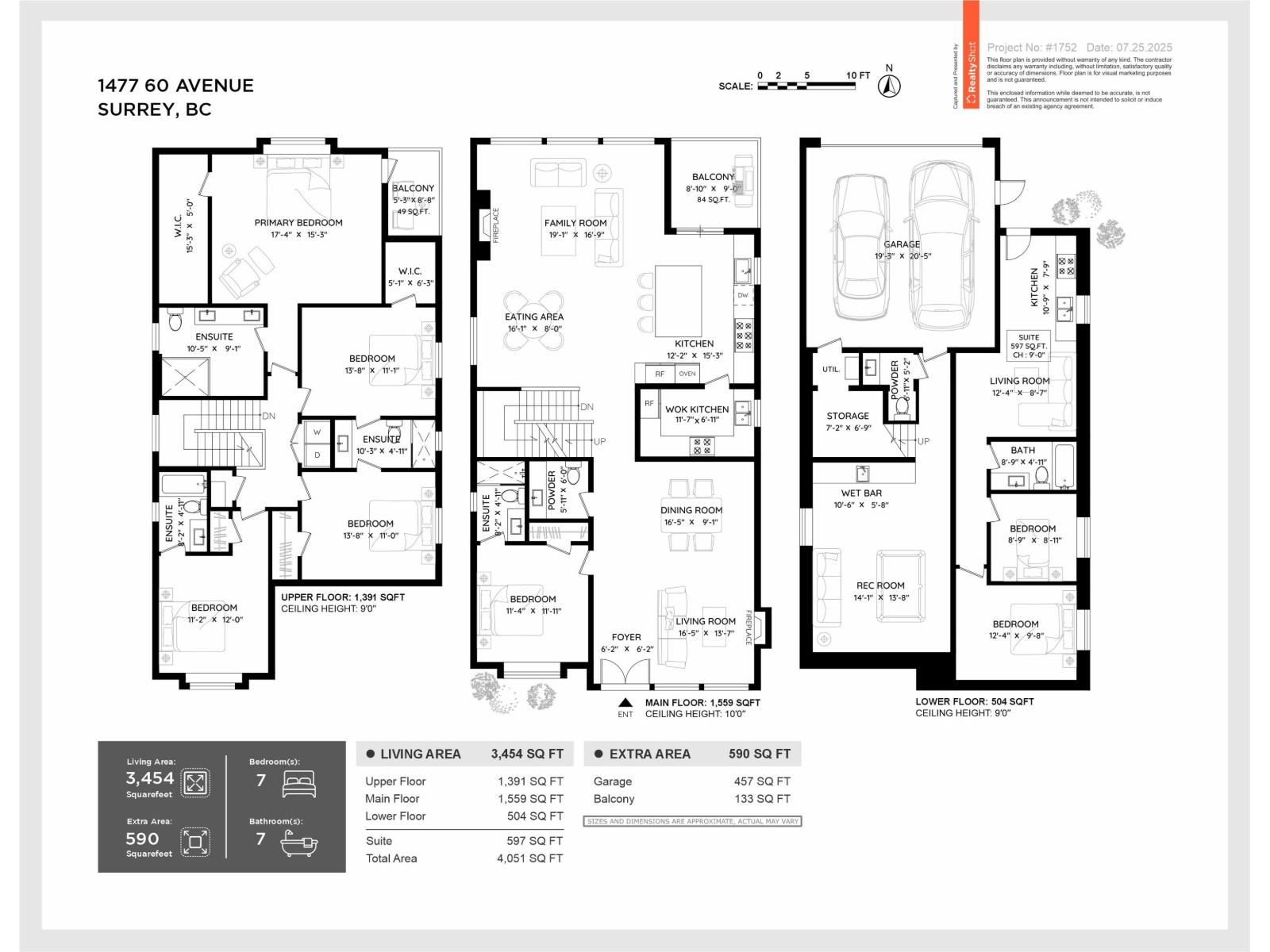
Located in Sullivan Station, this brand-new home boasts one of the most thoughtfully designed layouts for a professional family. Upon entry, you are welcomed by impressive 12-foot-high ceilings in the living, dining, and nook areas, creating a grand yet inviting atmosphere. The main floor also includes a convenient guest bedroom with a full bath. The family room is an ideal gathering place for daily living, while the spice kitchen provides generous space for caterers. Upstairs, discover four spacious bedrooms, including the primary suite with ensuite and walk-in closet, plus three additional full bathrooms. The lower level features a legal 2-bedroom, 1-bath suite. A recreation room with a bar offers an excellent ambiance for entertaining. Open house Saturday 2-4?PM.
Property Specifications
Comprehensive breakdown of features and details.
Interior Details
Building & Exterior
Land & Location
Utilities & Services
Listing & Financials
Other Specifications
For Sale
$1,789,000
Beds
7
Baths
8
Living Area
4,051 sqft
Lot Size
4,238 sqft
Property Type
House
Year Built
2024