2A 1319 TWP RD 510, Rural Parkland County, Alberta T7Y2N2

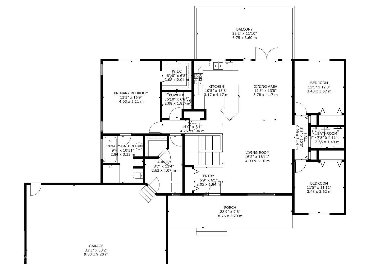
WALKOUT bungalow with attached triple garage (32Wx28L, heated, 220V, water, EV charger) on 2.17 acres (additional 2.42 acres available) in Lamorra Landing Estates, 20 minutes south of Stony Plain near the North Saskatchewan River. This beautiful 1,822 sq ft (plus full basement) home features hardwood flooring, 11’ ceiling and a great open concept floor plan. On the main level: living room with south-facing window, large dining area with deck access, gourmet kitchen with two-tier eat-up island, main floor laundry, 2.5 bathrooms and 3 generous-sized bedrooms including the owner’s suite with walk-in closet and 4-piece ensuite. Bright walkout basement with 2 additional bedrooms, 4-piece bathroom, storage rooms and a spacious family/rec room with huge wet bar. Outside: covered patio with hot tub, covered deck, front porch, 3 storage sheds, wood shed, fire pit. 25 mins to Spruce Grove or Devon, 30 mins to Edmonton. Attached Raw land lot for sale: MLS E4467606, Package Pricing Available.
Property Specifications
Comprehensive breakdown of features and details.
Interior Details
Building & Exterior
Land & Location
Listing & Financials
Other Specifications
For Sale
$750,000
Beds
5
Baths
4
Living Area
1,819 sqft
Lot Size
2.17 acres
Property Type
House
Year Built
2007