3 Executive Drive, Hampton, New Brunswick E5N5J7

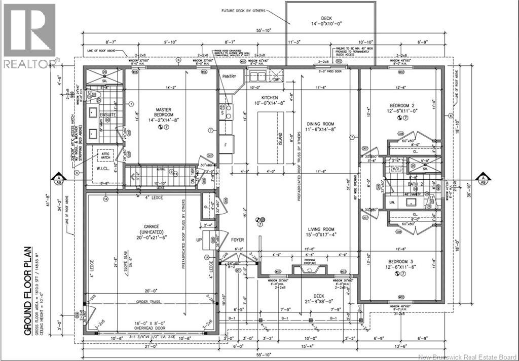
Beautiful new construction in the heart of Hampton, offering modern style, quality craftsmanship, and great flexibility for todays families. With the foundation and framing complete, the home will be ready in a few months, and early buyers may still select some finishes. The main level features approx. over 1,600 sq. ft. of bright, open-concept living with 10 ft ceilings, engineered hardwood floors, a stylish fireplace, and a modern kitchen with quartz countertops, walk-in pantry, and sleek cabinetry. The layout includes a spacious primary bedroom with walk-in closet and ensuite, plus two additional bedrooms and a full bath, ideal for families or those seeking one-level living. The fully finished lower level adds another approx. over 1,600 sq. ft. with 9 ft ceilings, including two bedrooms (one non-conforming), a large rec room, and a finished walkout in-law suite with its own bathroom and kitchenette, perfect for extended family or potential rental income. A two-car garage, paved driveway, quality exterior finishes, and a 10-Year Atlantic Home Warranty complete this impressive package. A rare chance to own a thoughtfully designed new home in one of Hamptons most welcoming communities. All measurements to be verified by the buyer. HST rebate to be assigned to the builder.
Property Specifications
Comprehensive breakdown of features and details.
Interior Details
Building & Exterior
Land & Location
Listing & Financials
Other Specifications
For Sale
$589,000
Beds
5
Baths
3
Living Area
3,220 sqft
Lot Size
1,576 square meters
Property Type
Garden Home
Year Built
2025