5989 FREMLIN STREET, Vancouver, British Columbia V5Z3W8

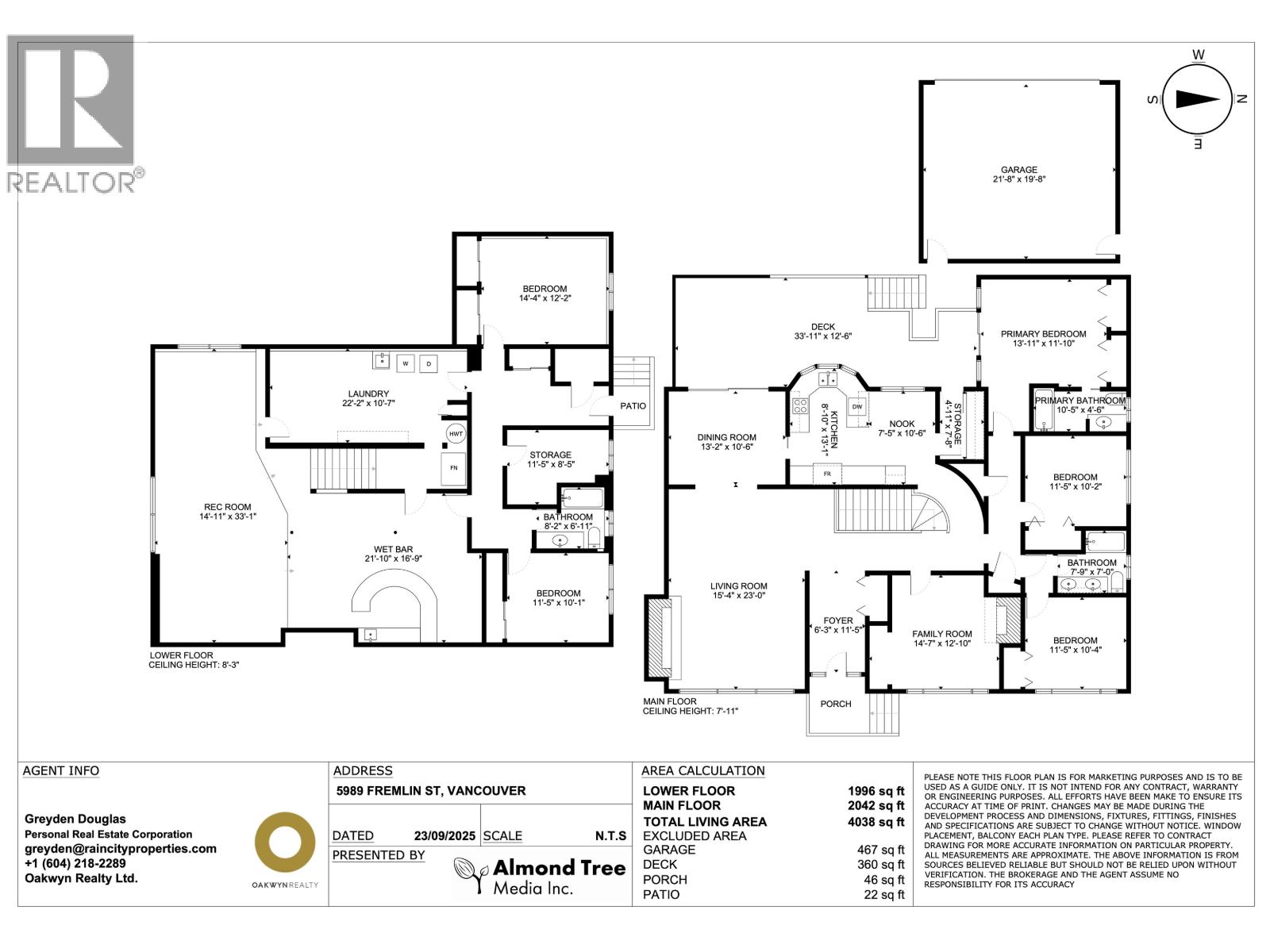
Priced well below assessed value! Discover the untapped potential at 5989 Fremlin Street in Vancouver's vibrant Oakridge neighborhood! This charming 4038 sq ft, 5-bed, 3-bath single-family home sits on a spacious lot, blending classic appeal with modern opportunity. Nestled near Oakridge Centre, transit, and green spaces, it's perfect for families or investors. Under the groundbreaking new R1-1 Zoning designation (effective 2025), redevelop into a multiplex masterpiece! Unlock up to 3-8 units on this lot, enabling ground-oriented multi-family housing while preserving neighborhood character. Ideal for savvy developers eyeing Vancouver's housing boom-boost density, value, and returns without the old RS restrictions.
Property Specifications
Comprehensive breakdown of features and details.
Interior Details
Building & Exterior
Land & Location
Listing & Financials
Other Specifications
For Sale
$2,999,900
Beds
5
Baths
3
Living Area
4,038 sqft
Lot Size
7,500 sqft
Property Type
House
Year Built
1962