1017 - 7 KING STREET E, Toronto (Church-Yonge Corridor), Ontario M5C1B2

1 / 22
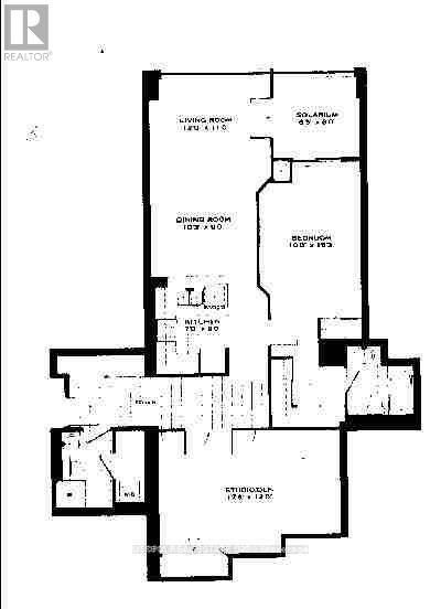
Welcome to a downtown Toronto gem that offers both sophistication and serenity. This spacious 2-bedroom + den, 2-bath condo features beautiful hardwood flooring and seamless access to the PATH system, placing the entire city at your fingertips. Here, urban convenience meets refined living. Own a residence that blends comfort, style, and historic charm. Book your showing and see it for yourself today!
Property Specifications
Comprehensive breakdown of features and details.
Interior Details
BasementNone
Bathrooms Total2
Bedrooms Total3
CoolingCentral air conditioning
FlooringLaminate
HeatingForced air, Natural gas
Building & Exterior
Building FeaturesStorage - Locker, Exercise Centre, Recreation Centre, Party Room, Security/Concierge
Exterior FeaturesConcrete
Parking FeaturesGarage, Underground
Land & Location
City RegionChurch-Yonge Corridor
Community FeaturesPets not Allowed
Lot FeaturesBalcony
Listing & Financials
Association Fee$1,193.87
Association Fee FrequencyMonthly
Association Fee IncludesCommon Area Maintenance, Heat, Electricity, Water, Insurance, Parking
Association NameProperty Wright Management
Listing OfficeUTOPIA REAL ESTATE INC.
Originating System NameToronto Regional Real Estate Board
Other Specifications
Common InterestCondo/Strata
CountryCanada
Parking Total1
For Sale
$799,900
1017 - 7 KING STREET E, Toronto (Church-Yonge Corridor), Ontario M5C1B2
Beds
3
Baths
2
Living Area
-
Lot Size
-
Property Type
Apartment
Year Built
-
Listing IDC12612800
Similar Homes You May Like
More Real Estate in Ontario
Ajax Real EstateBarrie Real EstateBrampton Real EstateGuelph Real EstateHamilton Real EstateKitchener Real EstateLondon Real EstateMarkham Real EstateMississauga Real EstateOakville Real EstateOttawa Real EstatePickering Real EstateRichmond Hill Real EstateSt. Catharines Real EstateToronto Real EstateVaughan Real EstateWhitby Real Estate