
For Sale
$499,000
MLS® Number: 40793633
Bedrooms
5
Bathrooms
4
Floor Area
2,188
For Sale
$499,000
Bedrooms
5
Bathrooms
4
Floor Area
2,188
82 FIRST Avenue, Trenton, Ontario
About This Property
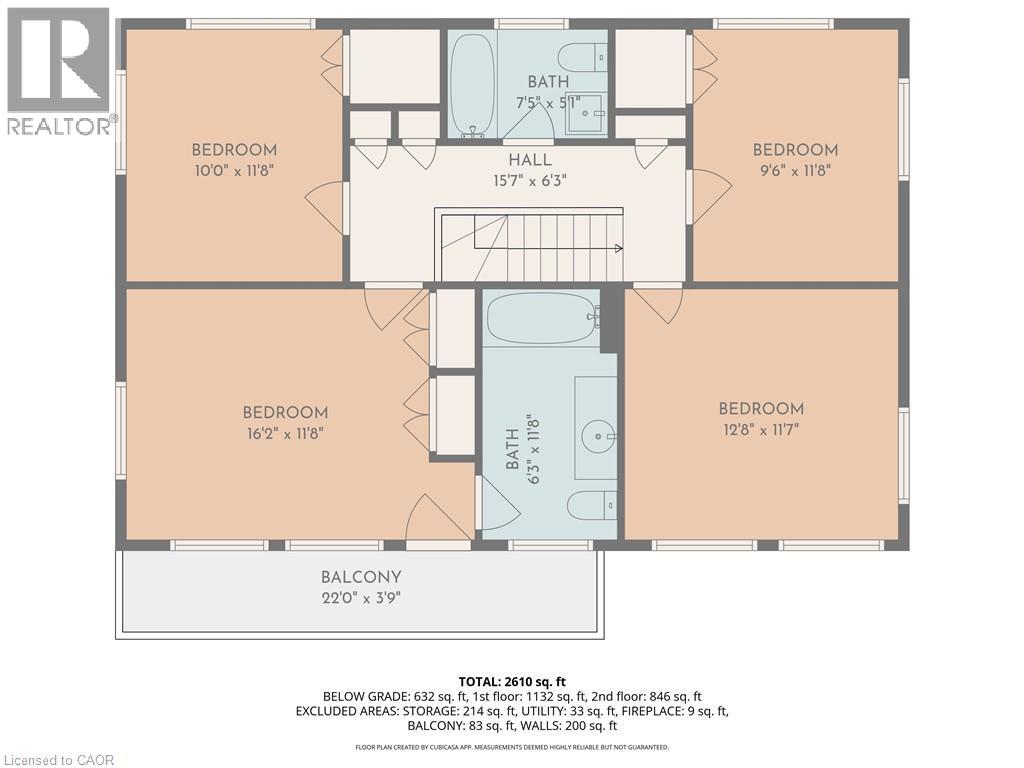
Step Inside This Well Cared For Five Bedroom Four Bathroom Home In One Of Quinte West's Most Desired Neighbourhoods. The Main Floor Offers A Practical Layout With A Warm And Inviting Living Room Featuring A Fireplace And Large Windows That Fill The Space With Natural Light. The Beautiful Eat In Kitchen Includes Select Stainless Steel Appliances And Overlooks The Dining Area, Creating The Perfect Setting For Everyday Living. The Primary Bedroom Is Conveniently Located On The Main Floor And Was Previously The Garage. The Second Level Offers Four Additional Spacious Bedrooms, Providing Comfort And Flexibility For Families Of All Sizes. Outside, You Are Greeted With A Double Car Driveway And A Large Fenced Backyard That Backs Onto A Peaceful Neighbourhood Park, Offering Both Privacy And A Scenic Backdrop. The Home Is Located Close To Charming Local Shops, Restaurants, Schools, Community Centres, And Picturesque Walking Trails. Commuters Will Appreciate The Quick Access To Major Roads. This Is A Wonderful Opportunity To Enjoy Comfort, Space, And Convenience In A Fantastic Family Friendly Area.
Property Details
Interior Details
Basement
Finished, Full
Bathrooms Total
4
Bedrooms Total
5
Cooling
Central air conditioning
Heating
Forced air, Natural gas
Living Area
2188 sqft
Building & Exterior
Architectural Style
2 Level
Exterior Features
Other, Brick Veneer
Foundation Details
Unknown
Number Of Units Total
0
Stories
2.0
Land & Location
Frontage Length
60.0 feet
Subdivision Name
Trenton Ward
Listing & Financials
Association Fee
$0
Association Fee Frequency
Monthly
Listing Office
ROYAL LEPAGE SIGNATURE REALTY
Originating System Name
Cornerstone Association of REALTORS®
Other Specifications
Common Interest
Freehold
Country
Canada
Parking Total
2
Listed By
ROYAL LEPAGE SIGNATURE REALTY
Mortgage Calculator
Estimated Monthly Payment
$2,451
Principal and interest only. Actual rates may vary.
Mortgage Calculator
Estimated Monthly Payment
$2,451
Principal and interest only. Actual rates may vary.