92-106 Trans-Canada Highway, Bishop's Falls, Newfoundland & Labrador A0H1C0

1 / 7
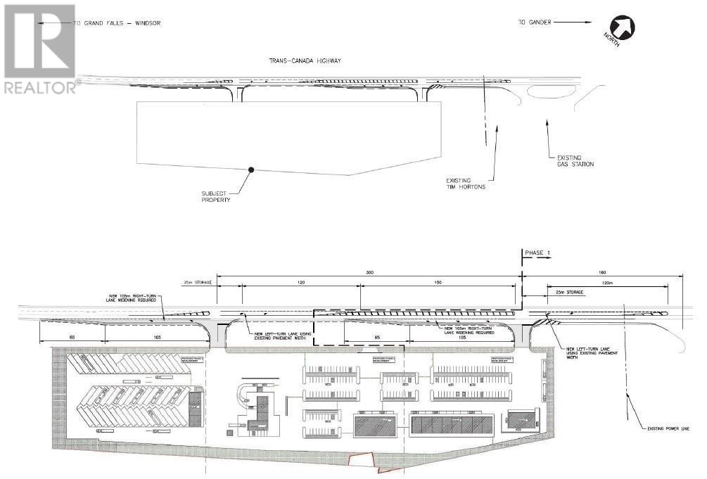
PRIME COMMERCIAL REAL ESTATE! Centrally located in the province of Newfoundland are these 1 acre lots in a high traffic area along the TCH located in the scenic Town of Bishop's Falls! With so much activity currently going on along the Exploits River this location would be ideal for any fast food chain or other service business. These lots are next to an established Tim Horton's and Irving Truck stop. Highway Commercial zoning allows many uses. Lots are being sold in 1 acre lots, as is and are not serviced. Owner is also open to sub dividing lots if buyer would like to buy more than one lot
Property Specifications
Comprehensive breakdown of features and details.
Land & Location
Lot Size Dimensions1 ACRE
Listing & Financials
Listing OfficeKeller Williams Platinum Realty - Grand Falls
Originating System NameNewfoundland & Labrador Association of REALTORS®
Other Specifications
Common InterestFreehold
CountryCanada
For Sale
$49,900
92-106 Trans-Canada Highway, Bishop's Falls, Newfoundland & Labrador A0H1C0
Lot Size
1 ACRE
Property Type
Vacant Land
Year Built
-
Listing ID1293328