6723 40 AV NW, Edmonton, Alberta T6K1R9

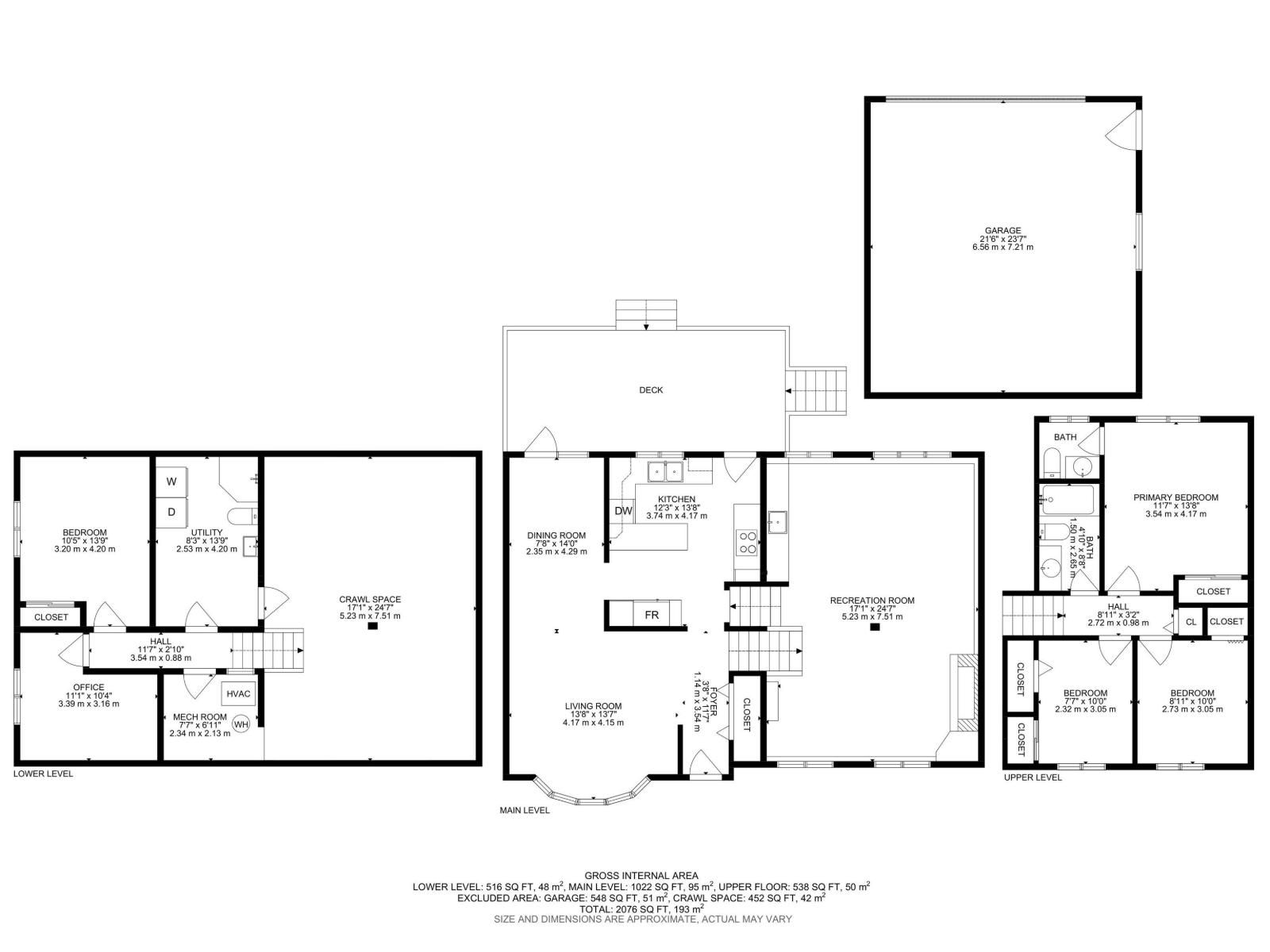
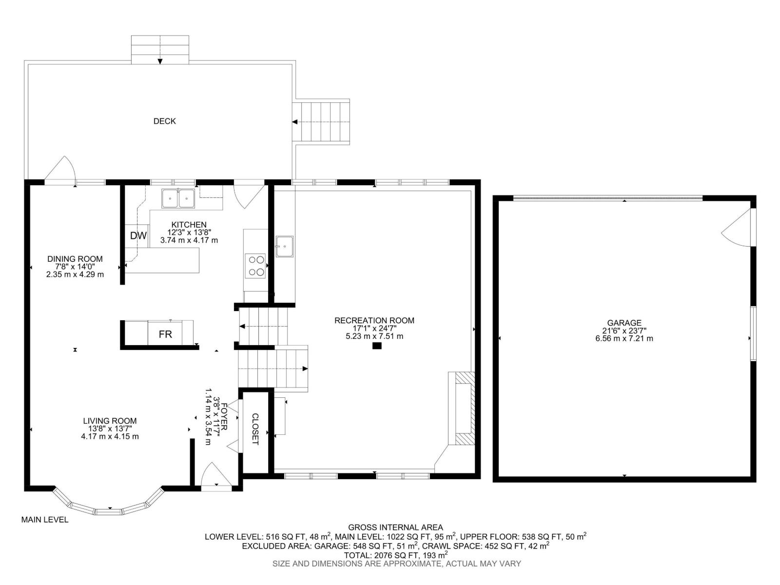
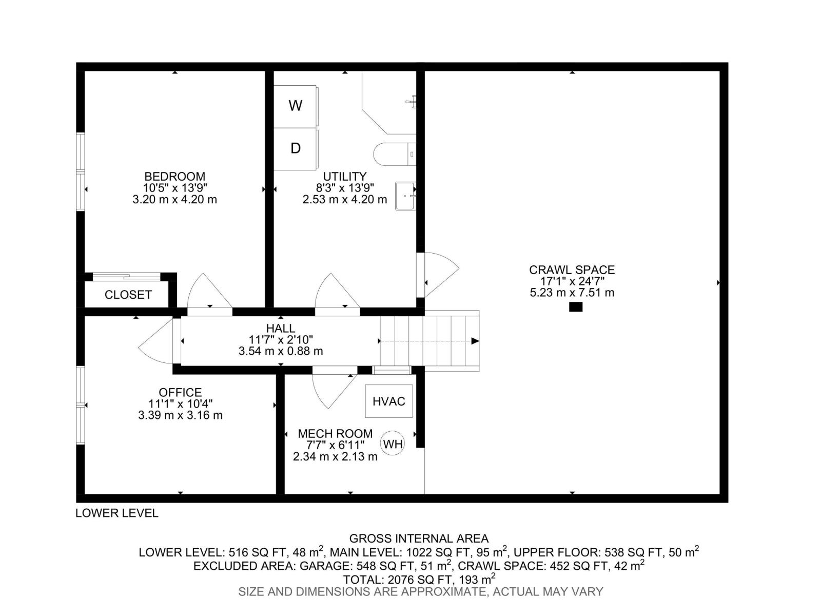
This well-maintained four-level split offers an inviting open-concept layout, perfect for growing families, and features a desirable south-facing backyard. The main floor showcases a bright living room, dining area, and a well-appointed kitchen ideal for everyday living and entertaining.Upstairs, you’ll find three comfortable bedrooms, a full family bathroom, and a spacious primary suite complete with its own private en-suite. The lower levels provide even more living space, including a large family room with a cozy fireplace, wet bar, and built-in cabinetry—perfect for relaxing or hosting guests. Two additional bedrooms, a full bathroom, and a dedicated laundry room complete this level.Step outside to enjoy the covered deck, ideal for family gatherings or quiet evenings, along with a backyard shed and double garage.Notable upgrades include: Roof (2011), Garage Roof (2020), and Hot Water Tank (2019).A true gem in the fantastic location of Michaels Park!—don’t miss your opportunity to call this home!
Property Specifications
Comprehensive breakdown of features and details.
Interior Details
Building & Exterior
Land & Location
Listing & Financials
Other Specifications
For Sale
$440,000
Beds
4
Baths
3
Living Area
1,109 sqft
Lot Size
535.14 square meters
Property Type
House
Year Built
1978