5 23141 72 AVENUE, Langley, British Columbia V2Y2R9

Livingstone Park (55+) One CAT permitted. Enjoy country living with excellent access to Langley & #1 Hwy. Affordable pad rent at $527.45. Over $13,000 in recent upgrades including BC Electrical Safety Certificate, Silver label, permitted back stairs, skirting repair, deck work, new hot water tank & more. Listed below assessment value. Solid 14' wide home on concrete pad, ideally positioned on a corner lot with East, South, & West exposure. Updates include a newer microwave hood vent, two remote-controlled mini-split A/C heat pumps, and a new bottom-freezer fridge (May 2025). Two storage sheds included (one new ShelterLogic shed April 2025) Totally rebuilt roof with torch on surface August 2016, 15 Yr Warranty. RV storage may be available through park at an additional cost. NO FLOOD ZONE!
Property Specifications
Comprehensive breakdown of features and details.
Interior Details
Building & Exterior
Land & Location
Utilities & Services
Listing & Financials
Other Specifications
For Sale
$159,900
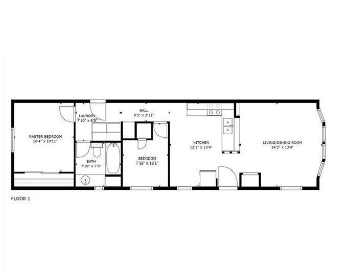
Beds
2
Baths
1
Living Area
728 sqft
Lot Size
-
Property Type
Manufactured Home
Year Built
1978