Unit 210 Hybrid Lane, East Uniacke, Nova Scotia B0N1Z0

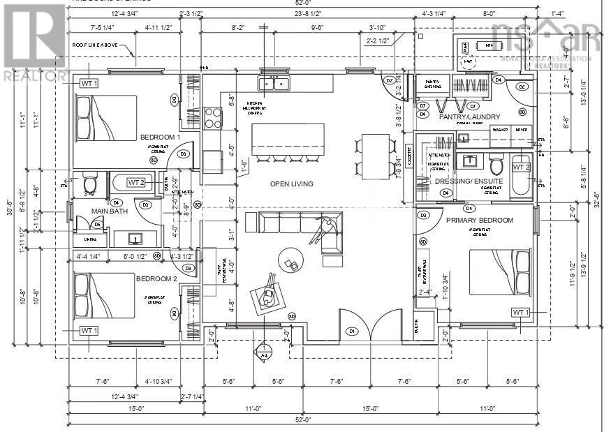
Luxury living in Cottage Country awaits! Located on a 1.3 acre lot in East Uniacke, this designer 3 bedroom, 2 bath home is currently under construction and just minutes from Long Lake's boat launch, dock, and scenic trails. Inside, you'll be greeted by an open concept living area featuring 9 ft ceilings throughout and designer lighting that elevates every room. The custom kitchen with a walk-in pantry and laundry room is open to the living room, complete with a cozy propane fireplace. The primary suite provides a private retreat with its own full ensuite bath, while two additional large bedrooms and a full bath are thoughtfully located on the opposite side of the home. The home is crafted with universal design principles and ensures comfort and accessibility for all. Step outside to your back deck overlooking peaceful nature. Enjoy modern conveniences including heat pumps and an electric vehicle charging station. The condo fee covers snow removal and garbage collection, offering low-maintenance living. You will love the optional 18x24 weather tight detached garage that can be added to the purchase. Adventure is right at your doorstep with swimming, fishing, and boating at Long Lake and exploring groomed hiking trails. This home truly has it all, offering quiet country living with the convenience of being less than 30 minutes from all amenities in HRM.
Property Specifications
Comprehensive breakdown of features and details.
Interior Details
Building & Exterior
Land & Location
Listing & Financials
Other Specifications
For Sale
$629,900
Beds
3
Baths
2
Living Area
1,574 sqft
Lot Size
1.3 acres
Property Type
Single Family
Year Built
-