106 3120 Island Hwy, Campbell River, British Columbia V9W5G1

** NEW PRICE* Great 2 bedroom 2 full bathroom home with an incredible shop and you OWN THE LOT! Built in 2014 this manufactured home is move in condition. Wonderful park and the $140/monthly fee includes landscaping, garbage removal, water and sewer. This is a top end manufactured home with full drywall package (not panelling) full solid concrete slab with engineered footings, and an upgraded kitchen with solid cabinets, tons of counter space, high-end appliances, garburator and a brand new hot water tank. The house is inexpensive to heat with extra insulation and an efficient propane furnace. Hydro runs $100/mth and propane was $1100 per year. Propane tank rental is $138/ yr. ** The heated 18’x20’ SHOP is well constructed and comes with shelving and a desk, perfect for any project. Forest Glen park is a great self-managed and desirable park in a great location with a strong reserve fund. Taxes $2200.00 with home grant applied
Property Specifications
Comprehensive breakdown of features and details.
Interior Details
Building & Exterior
Land & Location
Listing & Financials
Other Specifications
For Sale
$429,900
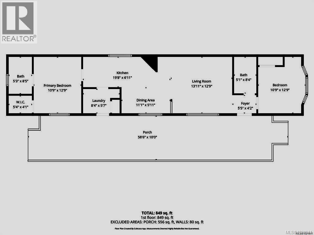
Beds
2
Baths
2
Living Area
1,566 sqft
Lot Size
4,792 sqft
Property Type
Manufactured Home
Year Built
2014