3 Fifth Avenue, Burin, Newfoundland & Labrador A0E1E0

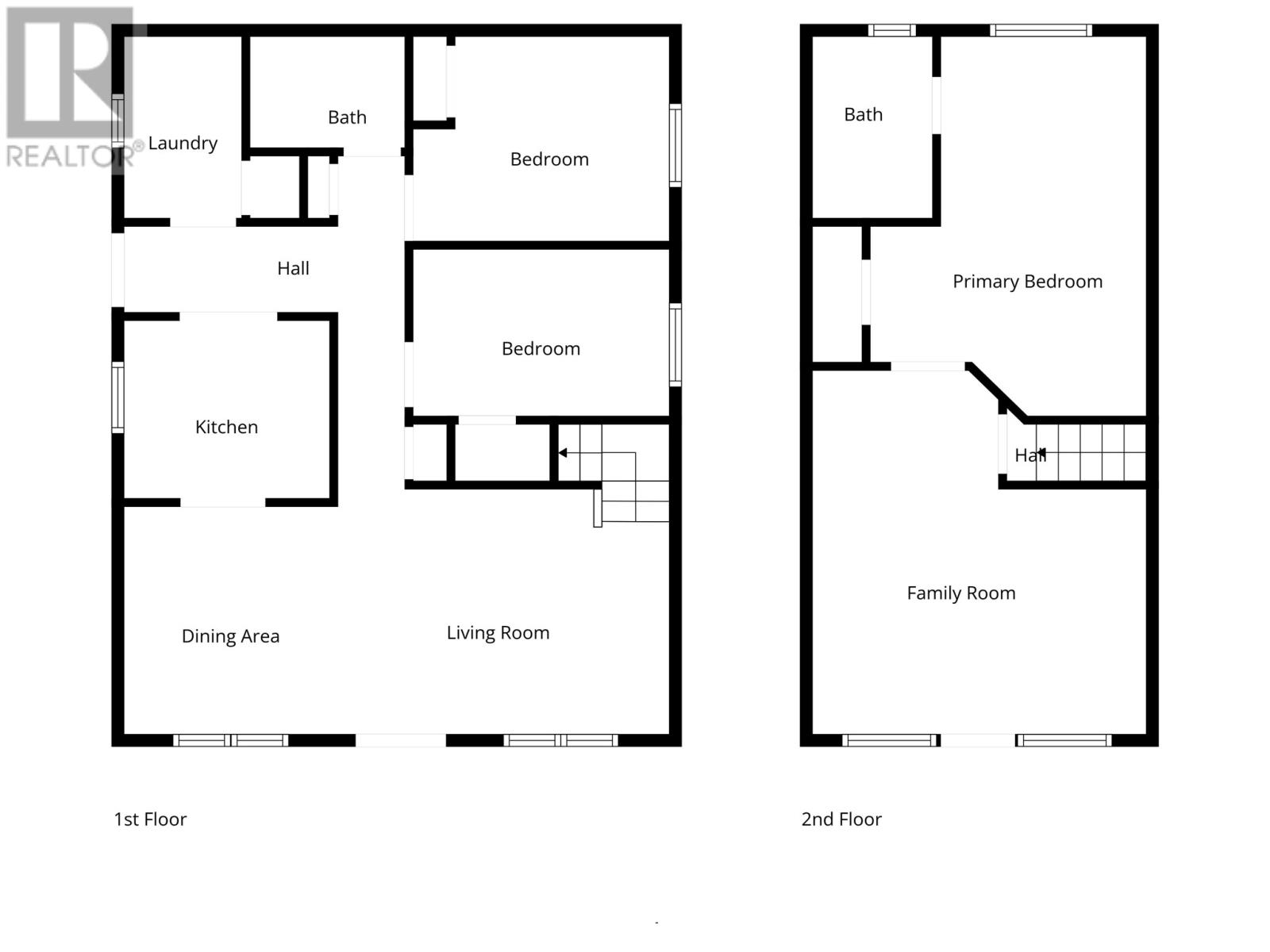
Wake up to still water, birdsong, and the quiet comfort of the woods in this charming A-frame cabin that offers more than a home—it offers a lifestyle rooted in nature. Set on over an acre of private land, this property captures classic cabin character with thoughtful updates, featuring upper and lower decks that showcase beautiful pond views and create the perfect setting for slow mornings and relaxed evenings. Pond access is conveniently located across the road from the driveway, making it easy to spend peaceful afternoons taking the kayaks out on the water. Inside, the home offers three bedrooms, two full bathrooms, and an additional rec room that provides flexible space for gathering, hobbies, or hosting guests. Practical improvements include a metal roof, concrete septic system, and a mini-split for comfortable year-round use. A brand new 24x30 garage offers plenty of room for storage, vehicles, or recreational gear, complemented by a 12x16 storage shed. Ideally located near Golden Sands and just 10 minutes from the amenities of Marystown, this property delivers the best of both worlds—privacy, pond views, and the timeless appeal of cabin living with town conveniences close by. If you’ve been dreaming of a peaceful retreat with room to make it your own, this is one you’ll want to see—book your private viewing today!
Property Specifications
Comprehensive breakdown of features and details.
Interior Details
Building & Exterior
Land & Location
Listing & Financials
Other Specifications
For Sale
$234,900
Beds
3
Baths
2
Living Area
1,152 sqft
Lot Size
-
Property Type
Recreational
Year Built
1983