6257 34 Street, Edmonton, Alberta T6B2V6

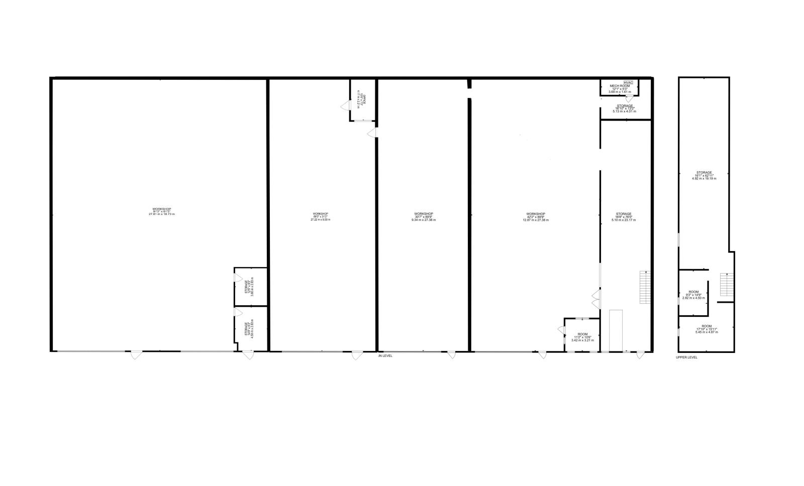
Prime Industrial Property on 34 St offers a ±17,814 SF multi-bay warehouse on a 4.81-Acre lot, boasting a low site coverage ratio of just 7.6%— providing a versatile opportunity for owner-users or investors seeking a multi-tenant asset. The fully graveled and fenced yard provides excellent functionality for storage, fleet parking, or industrial operations. Designed for efficiency, the building includes five (5) grade loading doors (14’ x 16’), 3-phase power supply, and impressive ceiling heights of 33 feet in the front and 26 feet in the back. With minimal office buildout, this property prioritizes efficient warehouse and yard space. Conveniently located with direct access from 34 Street, and positioned between Sherwood Park Freeway and Whitemud Drive, it offers seamless connectivity and is just 5 minutes from Anthony Henday Drive. Don’t miss this rare opportunity to secure a well-positioned industrial property with excellent access and flexibility. Close to all Amenities & Shopping Centre. Must See !!!!!Other Property Types: IndustrialSubject Space Width: 180Subject Space Depth: 89Largest Overhead Door Height: 16Ownership Interest: PrivateReports Available: Building Plans,Environ. Site ProfileSite Services: Electricity,Natural Gas,Paved StreetsSite Influences: Airport Nearby,Flat Site,Public Transportation,Fenced Yard,Highway AccessTitle to Land: Fee SimpleRPR Survey Available: NoSeller Rights: NoAppointment Name: Ravi ManderAppointment Phone: 780-937-2650Paragon Listing ID: E4427285
Property Specifications
Comprehensive breakdown of features and details.
Interior Details
Building & Exterior
Land & Location
Listing & Financials
Other Specifications
For Sale
$5,990,000
Beds
-
Baths
-
Living Area
17,814 sqft
Lot Size
209,523.6 sqft
Property Type
{"AvailabilityDate": null, "DocumentsAvailable": [], "LeaseAmount": null, "LeaseAmountFrequency": null, "BusinessType": [], "LeasePerUnit": "square feet", "WaterBodyName": null, "PoolFeatures": [], "RoadSurfaceType": [], "CurrentUse": [], "PossibleUse": [], "AnchorsCoTenants": null, "Fencing": [], "OtherEquipment": [], "TotalActualRent": null, "ExistingLeaseType": [], "InternetEntireListingDisplayYN": true, "Inclusions": null, "CoListOfficeKey": "67151", "CoListOfficeKey2": null, "CoListOfficeKey3": null, "CoListAgentKey": "2096065", "CoListAgentKey2": null, "CoListAgentKey3": null, "InternetAddressDisplayYN": true, "Directions": null, "AboveGradeFinishedArea": null, "AboveGradeFinishedAreaUnits": null, "AboveGradeFinishedAreaSource": null, "AboveGradeFinishedAreaMinimum": null, "AboveGradeFinishedAreaMaximum": null, "BelowGradeFinishedArea": null, "BelowGradeFinishedAreaUnits": null, "BelowGradeFinishedAreaSource": null, "BelowGradeFinishedAreaMinimum": null, "BelowGradeFinishedAreaMaximum": null, "LivingAreaSource": null, "LivingAreaMinimum": null, "LivingAreaMaximum": null, "PropertyCondition": [], "Roof": [], "ConstructionMaterials": [], "BedroomsAboveGrade": null, "BedroomsBelowGrade": null, "Zoning": null, "ZoningDescription": null, "TaxAnnualAmount": null, "TaxBlock": null, "TaxLot": null, "TaxYear": null, "IrrigationSource": [], "WaterSource": [], "Sewer": [], "Electric": []}
Year Built
2015