47 Street, Tofield, Alberta T0B4J0

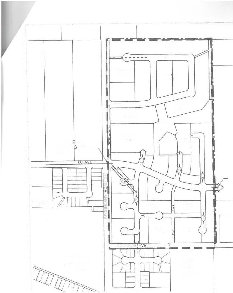
These undeveloped lands are currently leased out for hay production. Northeast Tofield ASP encourages Medium and High Density housing. Trunk sewer line exists through the SE corner of the parcel. Adequate water distribution capacity from towns existing water system according to municipality. Services by extension of electricity, natural gas, telecom and cable services present at adjacent site.Other Property Types: Commercial LandOwnership Interest: PrivateSite Services: See RemarksTitle to Land: Fee SimpleRPR Survey Available: YesSeller Rights: YesAppointment Name: Conor ClarkeAppointment Phone: 780-436-7410Paragon Listing ID: E4291723
Property Specifications
Comprehensive breakdown of features and details.
Land & Location
Listing & Financials
Other Specifications
For Sale
$150,000
Lot Size
435600 sqft
Property Type
Vacant Land
Year Built
-