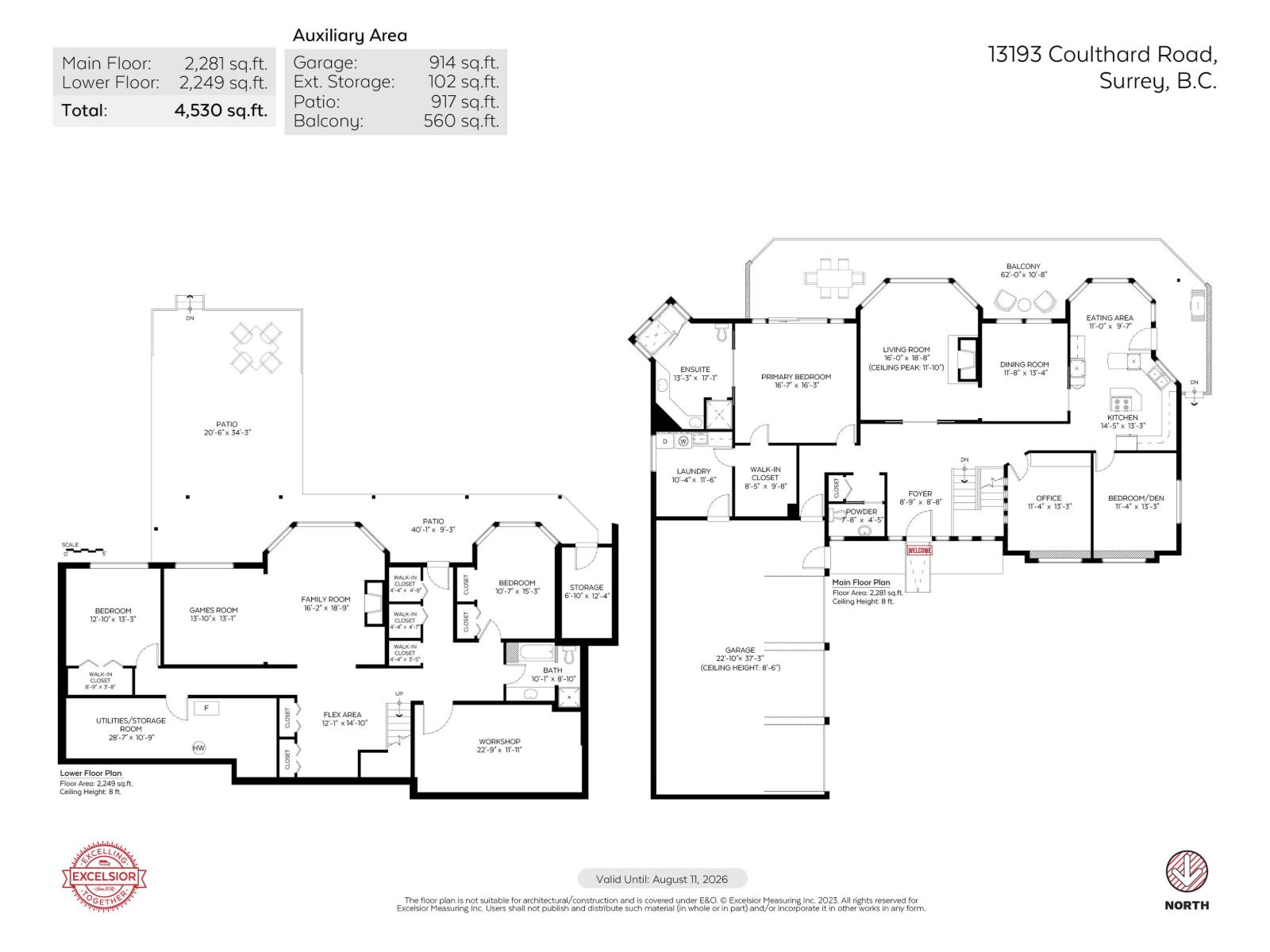
13193 COULTHARD ROAD, Surrey, British Columbia V3X3E5

Situated on a pristine half-acre ocean view lot, this Rancher offers spacious, single-level living with a walk out basement. This sprawling 4,530 sq. ft. home was designed by its original owner and is ready for its new people to call home. Wake up to the beautiful ocean views and enjoy spectacular sunsets from your private oasis. The massive floor plan provides an incredible canvas for entertaining, featuring oversized rooms. For the hobbyist the property boasts a triple-car garage, workshop in basement and extensive RV parking for all your toys. Great open living room with vaulted ceilings. Basement has great potential for inlaw suite. Located on one of the area's most coveted neighbourhoods and surrounded by million dollar homes!
Property Specifications
Comprehensive breakdown of features and details.
Interior Details
Building & Exterior
Land & Location
Utilities & Services
Listing & Financials
Other Specifications
For Sale
$1,998,000
Beds
4
Baths
3
Living Area
4,530 sqft
Lot Size
21,910 sqft
Property Type
House
Year Built
1987