2841 BLACKWATER ROAD, D'Arcy, British Columbia V0N1L0

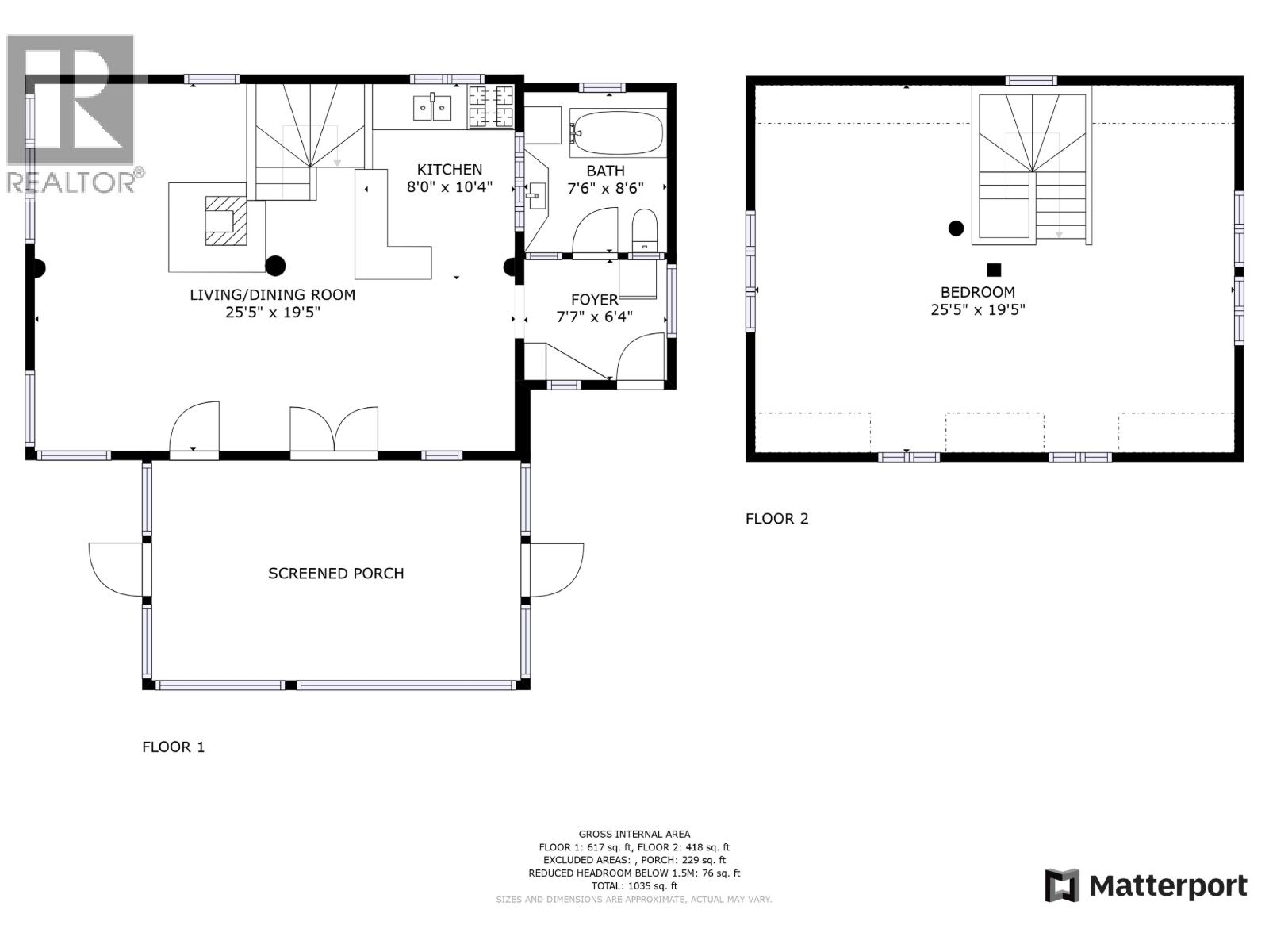
Tucked in the trees near Blackwater and Birkenhead Lakes, this private off-grid cabin offers a peaceful retreat just 40 minutes from Pemberton. Thoughtfully updated with new windows and a new solar system, the cozy cabin features an open loft bedroom, airtight wood stove, propane cooktop, and enzyme composting toilet. A spring-fed water source with registered water license supplies the home, with an outdoor shower for seasonal use. Enjoy the screened porch beside the water feature, a firepit for evening gatherings, and a landscaped yard with blueberries, raspberries, blackcurrants, and huckleberries. Includes a solar-powered outbuilding, shed, and carport-surrounded by year-round recreation and complete privacy.
Property Specifications
Comprehensive breakdown of features and details.
Interior Details
Building & Exterior
Land & Location
Listing & Financials
Other Specifications
For Sale
$749,000
Beds
1
Baths
1
Living Area
1,035 sqft
Lot Size
2.32 acres
Property Type
House
Year Built
1977