16524 HURONTARIO STREET, Caledon, Ontario L0N1C0

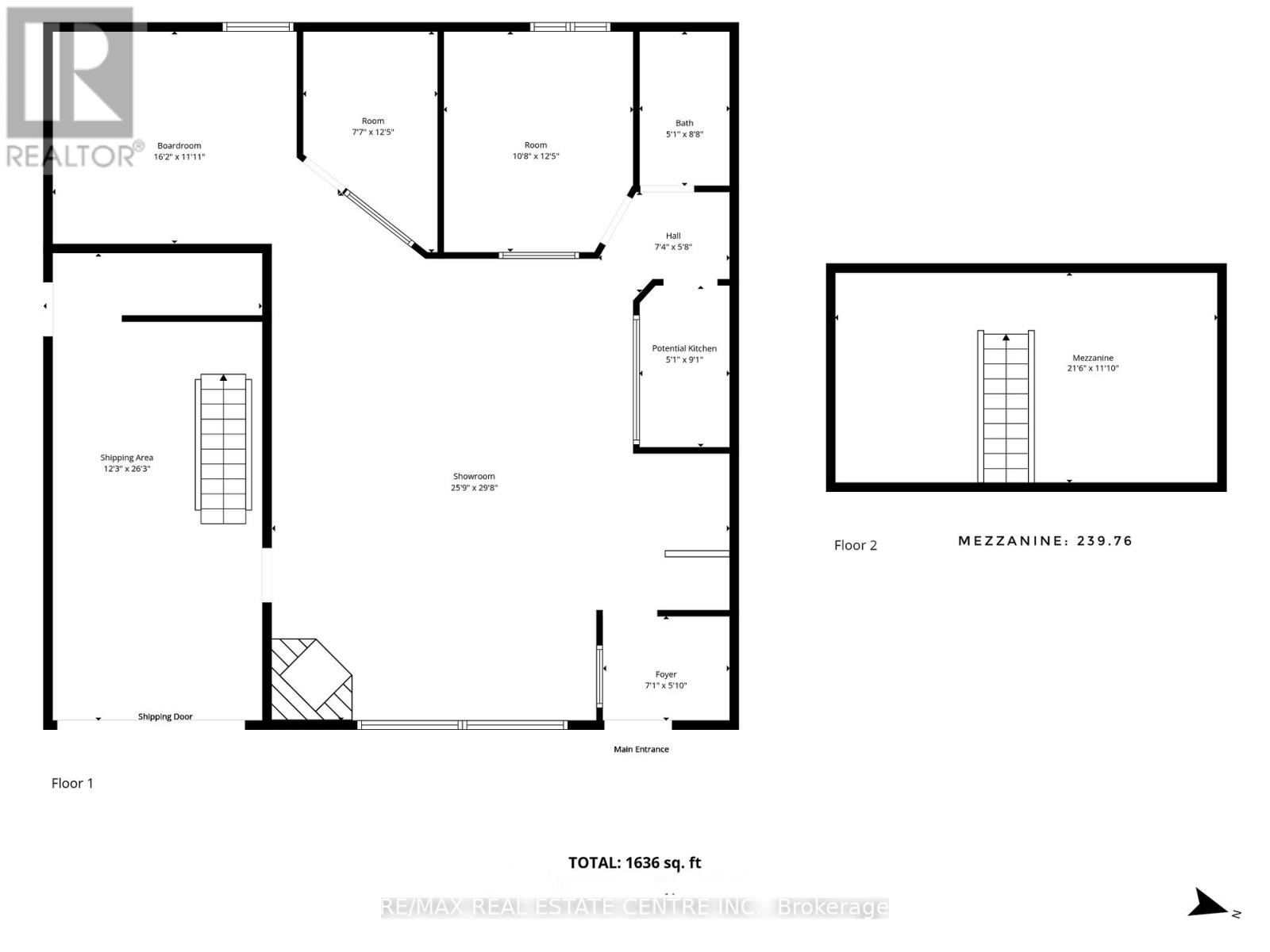
A Rare Opportunity To Acquire A Free-Standing 11,680 St, Ft. Commercial Building With 187 Feet Of Prime Frontage On Busy Highway 10, Ideally Located In Caledon, Between Brampton And Orangeville. The Property Features Two Separate Commercial Retail Units. The Smaller Unit Is 1,636 Sq. Ft. And Includes Offices, A Bathroom, A Large Shipping Area With A Truck-Level Door And Additional Mezzanine Space For Extra Storage. The Larger Unit, Approximately 6,161 Sq. Ft., Was Previously Used As A Parts And Accessories Retail Shop And Includes Offices, Bathrooms, Workshop Areas, Truck-Level Shipping Doors, And A Drive-In Door. Vacant Possession Will Be Provided On Closing. In Addition, The Larger Unit Has An Additional 3,883 Sq. Ft. Warehouse Area That Can Be Separated And Used Independently For Owner Storage. Situated In A High-Traffic Corridor Next To A Gas Station And Café, The Property Offers Excellent Visibility And Consistent Foot Traffic, With Ample On-Site Parking For Staff And Customers. The Versatile Layout Provides Flexibility To Accommodate Multiple Tenants Or Owner-Operators. Environmental Due Diligence Has Been Completed, With A Phase 2 Environmental Assessment Available Upon Accepted Agreement. The Sale Includes Land And Building Only; Tenant Chattels, Belongings, And Equipment Are Excluded. This Estate Sale Is Being Offered In An AS-IS, WHERE-IS Condition. Buyers And Their Agents Are Responsible For Verifying Zoning, Taxes, And Measurements. This Property Offers Excellent Potential For Investors Or End-Users Seeking High-Visibility, Well-Located Commercial Space With 2 Commercial-Retail Units.
Property Specifications
Comprehensive breakdown of features and details.
Interior Details
Building & Exterior
Land & Location
Listing & Financials
Other Specifications
For Sale
$2,999,000
Beds
-
Baths
-
Living Area
11,680 sqft
Lot Size
-
Property Type
{"AvailabilityDate": null, "DocumentsAvailable": [], "LeaseAmount": null, "LeaseAmountFrequency": null, "BusinessType": ["Retail and Wholesale"], "LeasePerUnit": null, "WaterBodyName": null, "PoolFeatures": [], "RoadSurfaceType": [], "CurrentUse": [], "PossibleUse": [], "AnchorsCoTenants": null, "Fencing": [], "OtherEquipment": [], "TotalActualRent": null, "ExistingLeaseType": [], "InternetEntireListingDisplayYN": true, "Inclusions": null, "CoListOfficeKey": null, "CoListOfficeKey2": null, "CoListOfficeKey3": null, "CoListAgentKey": null, "CoListAgentKey2": null, "CoListAgentKey3": null, "InternetAddressDisplayYN": true, "Directions": "Hurontario St. (HWY 10) & The Grange Sideroad", "AboveGradeFinishedArea": null, "AboveGradeFinishedAreaUnits": null, "AboveGradeFinishedAreaSource": null, "AboveGradeFinishedAreaMinimum": null, "AboveGradeFinishedAreaMaximum": null, "BelowGradeFinishedArea": null, "BelowGradeFinishedAreaUnits": null, "BelowGradeFinishedAreaSource": null, "BelowGradeFinishedAreaMinimum": null, "BelowGradeFinishedAreaMaximum": null, "LivingAreaSource": null, "LivingAreaMinimum": null, "LivingAreaMaximum": null, "PropertyCondition": [], "Roof": [], "ConstructionMaterials": [], "BedroomsAboveGrade": null, "BedroomsBelowGrade": null, "Zoning": null, "ZoningDescription": "NEDCA", "TaxAnnualAmount": 19691.28, "TaxBlock": null, "TaxLot": null, "TaxYear": null, "IrrigationSource": [], "WaterSource": ["Municipal water"], "Sewer": ["Septic System"], "Electric": []}
Year Built
-