4005 NASH DRIVE, Terrace, British Columbia V8G0L3

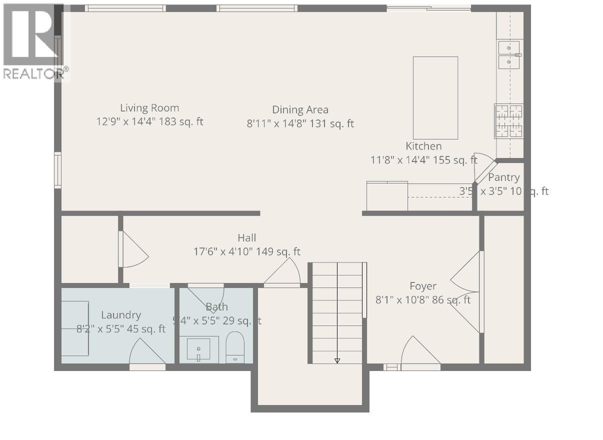
Welcome to your dream home! A stunning new two-storey by Swift River Construction sits on the newest street on the Bench and truly delivers. Step inside to a bright, open-concept layout designed for easy living and entertaining. The modern kitchen shines with LG stainless steel appliances, quartz countertops, and a walk-in pantry. You'll love the three spacious bedrooms, including a huge primary with a spa-inspired ensuite, walk-in closet, and private deck. Outside, enjoy a covered concrete patio and large yard perfect for BBQs, kids, and pets. With a double garage, massive driveway, heat pump, and 2-5-10 warranty, this home checks every box. See it and fall in love.
Property Specifications
Comprehensive breakdown of features and details.
Interior Details
Building & Exterior
Land & Location
Listing & Financials
Other Specifications
For Sale
$699,700
Beds
3
Baths
3
Living Area
1,930 sqft
Lot Size
6,534 sqft
Property Type
House
Year Built
2025