Irwin Lake Road, Hilden, Nova Scotia B0N1C0

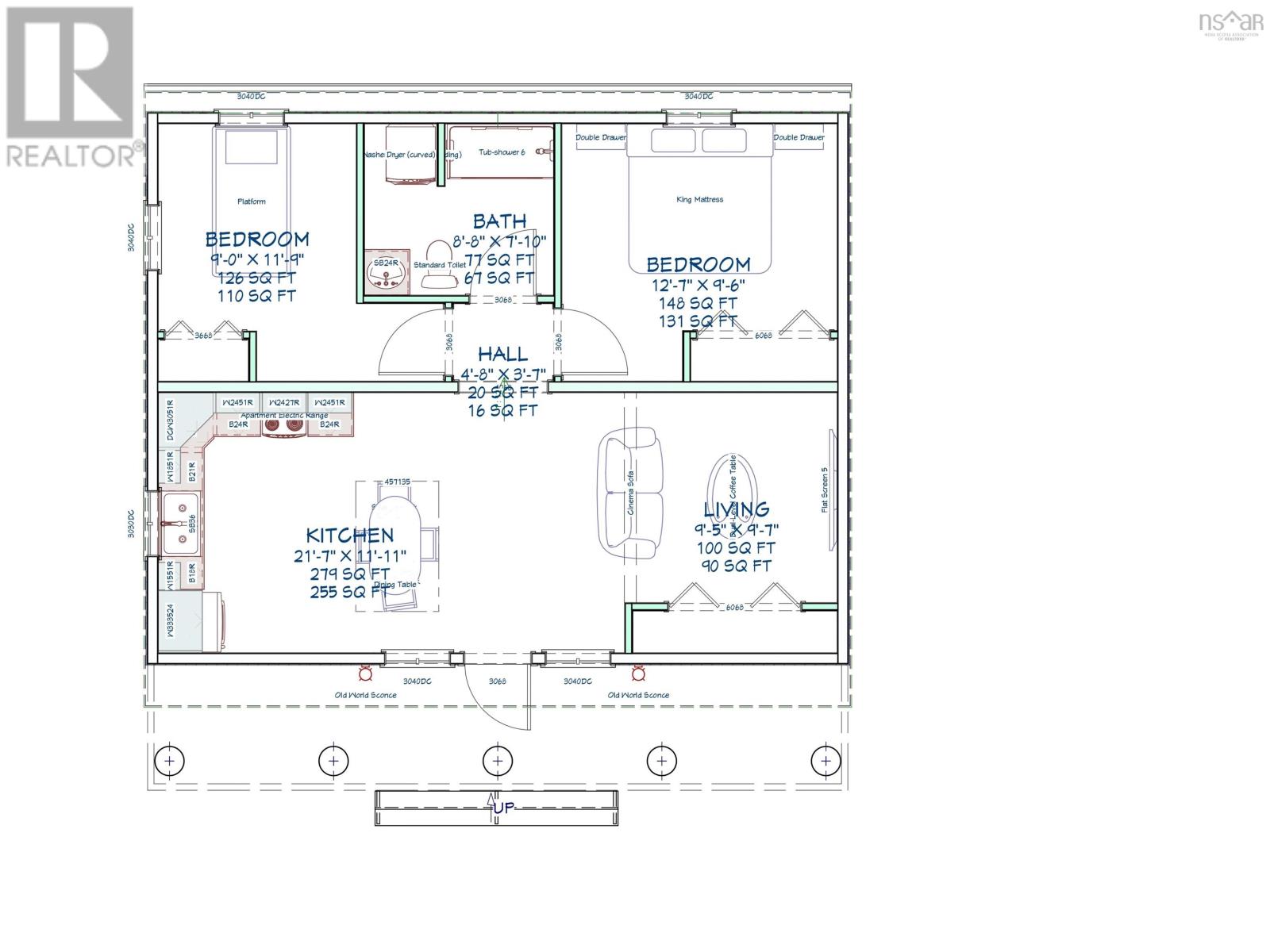
Introducing a small but mighty 1000 sq ft plan featuring 2 bedrooms and 1 well-appointed bathroom. This versatile layout is perfect for first homebuyers or those looking to downsize in retirement. Enjoy the charm and functionality of a space designed for comfort, no matter your stage in life. Embrace the possibilities this has to offer! This innovative property features all-metal siding and roofing for durability and style. Enjoy the comfort of in-floor heating combined with an efficient heat pump, ensuring a cozy atmosphere year-round Experience modern living with high-quality materials and energy-efficient solutions. Explore perfect blend of functionality and aesthetics in your next home! Discover the beauty of minimalist living in this charming 2-bedroom, 1-bath home. Enjoy the convenience of an eat-in kitchen that flows seamlessly into an open concept living room, perfect for relaxation and entertaining. Enjoy simplicity and comfort in a space designed for modern living. Discover the beauty of minimalist living in this charming 2-bedroom, 1-bath home. Enjoy the convenience of an eat-in kitchen that flows seamlessly into an open concept living room, perfect for relaxation and entertaining. Enjoy simplicity and comfort in a space designed for modern living. Even better, the purchase price qualifies for the Nova Scotia First-Time Home Buyers Down Payment Assistance Program for Colchester County, making this an excellent opportunity for eligible buyers to step into homeownership. Discover a space that truly feels like home. The property will be subdivided from a larger parcel.
Property Specifications
Comprehensive breakdown of features and details.
Interior Details
Building & Exterior
Land & Location
Listing & Financials
Other Specifications
For Sale
$299,900
Beds
2
Baths
1
Living Area
1,000 sqft
Lot Size
-
Property Type
House
Year Built
-