1320 GRAND MARAIS ROAD East, Windsor, Ontario N8W1W2

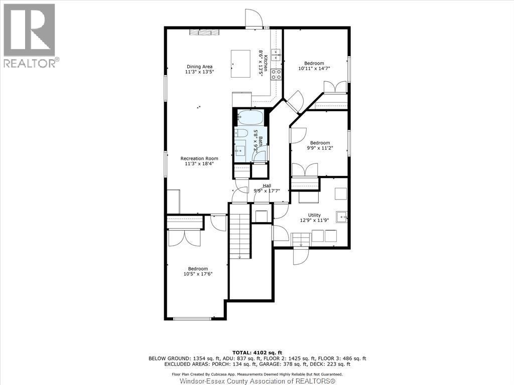
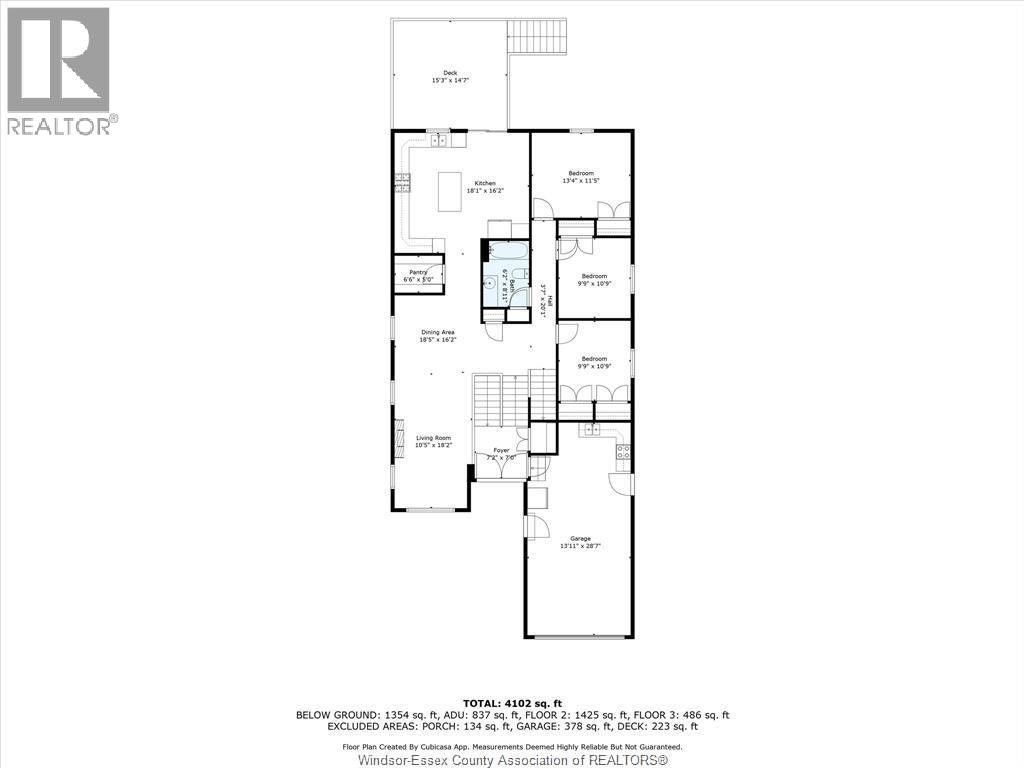
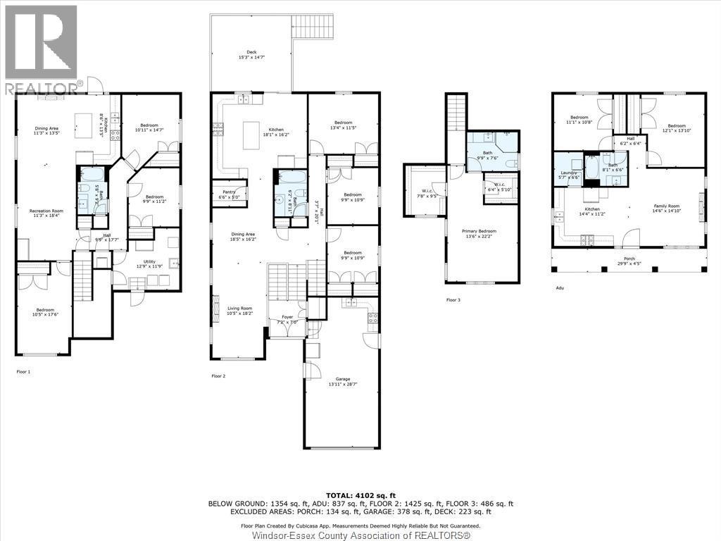
Exceptional property featuring 9 bedrooms, 4 bathrooms, and 4 kitchens, offering a rare blend of luxury living and strong income potential. This newly constructed home is thoughtfully designed to function either as a grand single-family residence or be easily configured into three self-contained units. Each unit offers separate entrances, private laundry, and dedicated living spaces, making it ideal for multi-generational living, extended families, or rental income. High-end finishes throughout include quartz countertops in all kitchens and bathrooms, 9-foot ceilings on every level, and abundant natural light. Suites feature walk-in closets, ensuite bathrooms, and pantries for added comfort and functionality. Situated on a deep lot spanning over 225 ft, the property provides generous outdoor space. A full-length driveway from front to back allows convenient side access for lower-level and ADU tenant parking. The standalone ADU is built to the same premium standards as the main home and includes its own storage shed. Potential cap rate of 6.5%+. An extensive media package is available to showcase this truly unique offering. 24 hours’ notice required. Call for additional details.
Property Specifications
Comprehensive breakdown of features and details.
Interior Details
Building & Exterior
Land & Location
Listing & Financials
Other Specifications
For Sale
$1,495,000
Beds
9
Baths
4
Living Area
2,748 sqft
Lot Size
-
Property Type
House
Year Built
2023