
House For Sale
$1,750,000
MLS® Number: 10371376
Bedrooms
4
Bathrooms
3
Floor Area
1,862
Land Size
0.08
Year Built
2019
House For Sale
$1,750,000
Bedrooms
4
Bathrooms
3
Floor Area
1,862
Land Size
0.08
Year Built
2019
375 Feathertop Way Lot# 34, Big White, British Columbia
About This Property
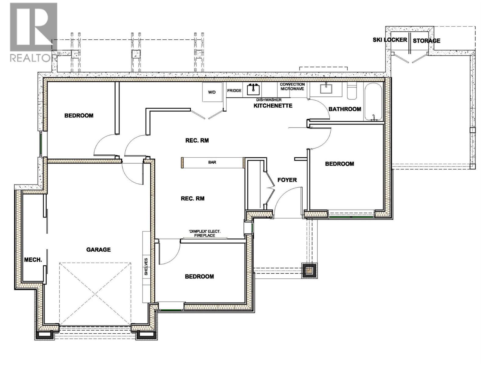
Welcome to 375 Feathertop Way located in the desirable Feathertop Estates. Enjoy true ski-in/ski-out convenience directly from your private ski locker, complete with a ski key rack, and quick access to The Bullet and Black Forest chairlifts. This home showcases 8” thick, heavily insulated exterior walls, triple-glazed European tilt-and-turn windows, and three-point latch European exterior doors, creating an airtight, energy-efficient envelope ideal for mountain conditions. Premium appliances throughout, including Bosch refrigerators and dishwashers on both upper and lower levels, a Bosch induction range in the upper kitchen, and a Bosch convection microwave in the lower kitchenette. The lower-level lock-off suite offers its own laundry and kitchenette, providing excellent flexibility for guests or potential rental income. Energy efficiency continues with LED lighting throughout, a Zehnder high-efficiency heat exchanger, and Dimplex electric baseboard and forced-air heating, each room equipped with individual remote-controlled thermostats. After a day on the slopes, relax by either electric fireplace or unwind in the spa-inspired amenities, including instant hot water at all sinks, an ensuite PRO-240 auto-flush steam generator, Jacuzzi J-345 hot tub with remote control, and a private sauna, also remotely controlled. This exceptional home is ideal for full-time living or a luxurious Big White retreat.
Property Details
Interior Details
Appliances
Refrigerator, Range - Electric, Dishwasher, Microwave, Washer/Dryer Stack-Up
Bathrooms Partial
0
Bathrooms Total
3
Bedrooms Total
4
Fireplace Features
Electric, Unknown
Fireplace
True
Fireplaces Total
2
Heating
Electric
Living Area
1862 sqft
Building & Exterior
Parking Features
Attached Garage, Carport
Stories
2.0
Year Built
2019
Land & Location
City Region
Big White
Community Features
Pets Allowed
Lot Size Area
0.08 acres
Lot Size Dimensions
0.08
Parcel Number
026-906-074
Postal Code
V1P1T4
Listing & Financials
Association Fee
$106.01
Association Fee Frequency
Monthly
Association Fee Includes
Property Management, Other, See Remarks
Listing Office
Engel & Volkers Okanagan
Originating System Name
Association of Interior REALTORS®
Other Specifications
Common Interest
Freehold
Country
Canada
Parking Total
2
Listed By
Engel & Volkers Okanagan
Mortgage Calculator
Estimated Monthly Payment
$8,597
Principal and interest only. Actual rates may vary.
Mortgage Calculator
Estimated Monthly Payment
$8,597
Principal and interest only. Actual rates may vary.