588 8th STREET E, Prince Albert, Saskatchewan S6V0W6

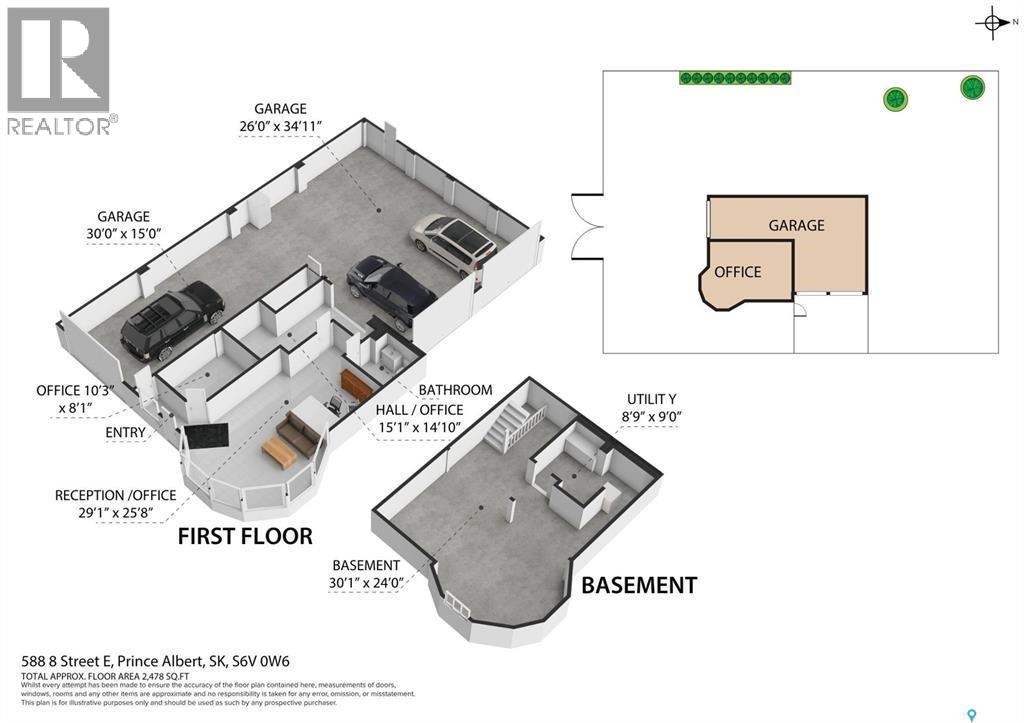
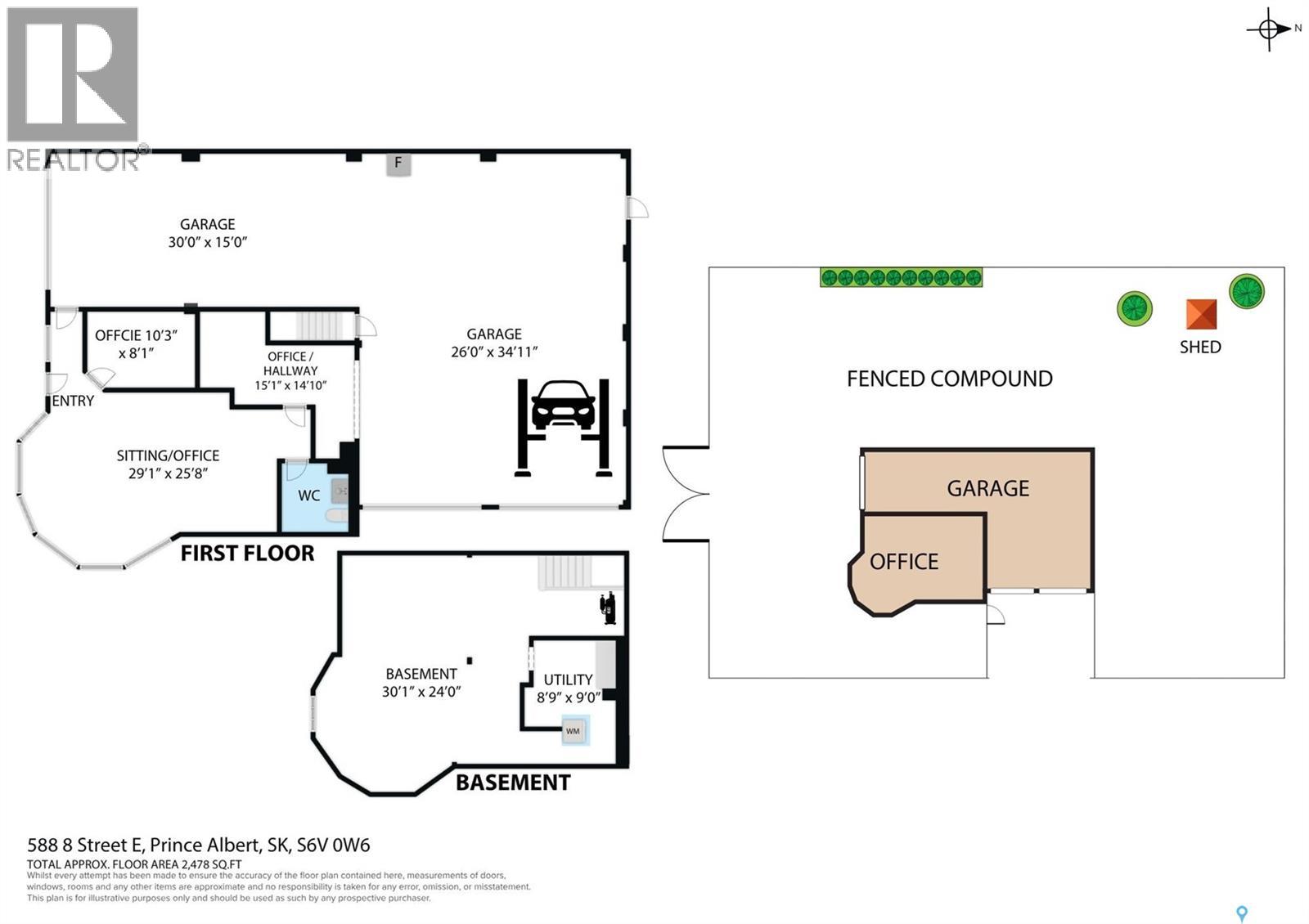
An exceptional location to launch or expand your business. Situated along busy 6th Ave, this versatile commercial building offers outstanding visibility and endless potential — ideal for automotive services, detailing, small-scale auto sales, or a variety of entrepreneurial ventures. The property features a fully fenced compound with ample parking for multiple vehicles, making it perfect for operations that require outdoor storage or customer parking. Step inside and you’ll appreciate the bright bay windows that enhance the reception area, creating a welcoming first impression. The interior includes a office space, a bathroom, and a well-equipped shop complete with a car lift, compressor, and indoor parking for up to three vehicles with overhead heating and 3 -10x10 doors, providing great versatility. . A basement level provides valuable additional storage space. A strong location, flexible layout, and ready-to-use shop amenities make this a standout opportunity for the right business. (Equipment not guaranteed to be in working order)
Property Specifications
Comprehensive breakdown of features and details.
Interior Details
Building & Exterior
Land & Location
Listing & Financials
Other Specifications
For Sale
$249,900
Beds
-
Baths
-
Living Area
1,938 sqft
Lot Size
-
Property Type
Business
Year Built
1940