
Row / Townhouse For Sale
$389,000
MLS® Number: 10371663
Bedrooms
3
Bathrooms
2
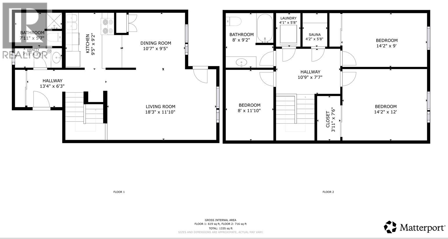
Floor Area
1,578
Year Built
1981
Row / Townhouse For Sale
$389,000
Bedrooms
3
Bathrooms
2
Floor Area
1,578
Year Built
1981
8040 Radium Golf Course Road Unit# 7, Radium Hot Springs, British Columbia
About This Property
*Great views! *Great layout! *Great condition! Welcome to #7 Radium Hill. You are up on top (no basement bedrooms here) with lots of sunshine (south facing covered deck) and awesome views of the Radium Golf Course, with glimpses of the Purcell and Rocky Mountains. This unit has had an extensive renovation (kitchen, bathrooms, flooring, paint) about ten years ago and has been lightly used (not used for short term rentals). This the largest layout, featuring three full bedrooms, sauna, and two lofts (perfect for sleeping the entire extended family). Whether this is a recreational retreat and the chance to make memories in the mountains, or even viable for full time living- don't hesitate on this quality offering!
Property Details
Interior Details
Bathrooms Partial
0
Bathrooms Total
2
Bedrooms Total
3
Heating
Baseboard heaters
Living Area
1578 sqft
Building & Exterior
Architectural Style
Multi-level
Parking Features
Additional Parking
Stories
3.0
Year Built
1981
Land & Location
City Region
Radium Hot Springs
Community Features
Rentals Allowed
Parcel Number
006-911-323
Postal Code
V0A1M0
Listing & Financials
Association Fee
$512
Association Fee Frequency
Monthly
Association Fee Includes
Waste Removal, Cable TV, Ground Maintenance, Water, Insurance, Other, See Remarks, Reserve Fund Contributions, Sewer
Listing Office
300888
Originating System Name
Association of Interior REALTORS®
Other Specifications
Common Interest
Condo/Strata
Country
Canada
Listed By
Contact for Details
Mortgage Calculator
Estimated Monthly Payment
$1,911
Principal and interest only. Actual rates may vary.
Mortgage Calculator
Estimated Monthly Payment
$1,911
Principal and interest only. Actual rates may vary.