1164 HAIST ROAD, Pelham (Fonthill), Ontario L3B5N5

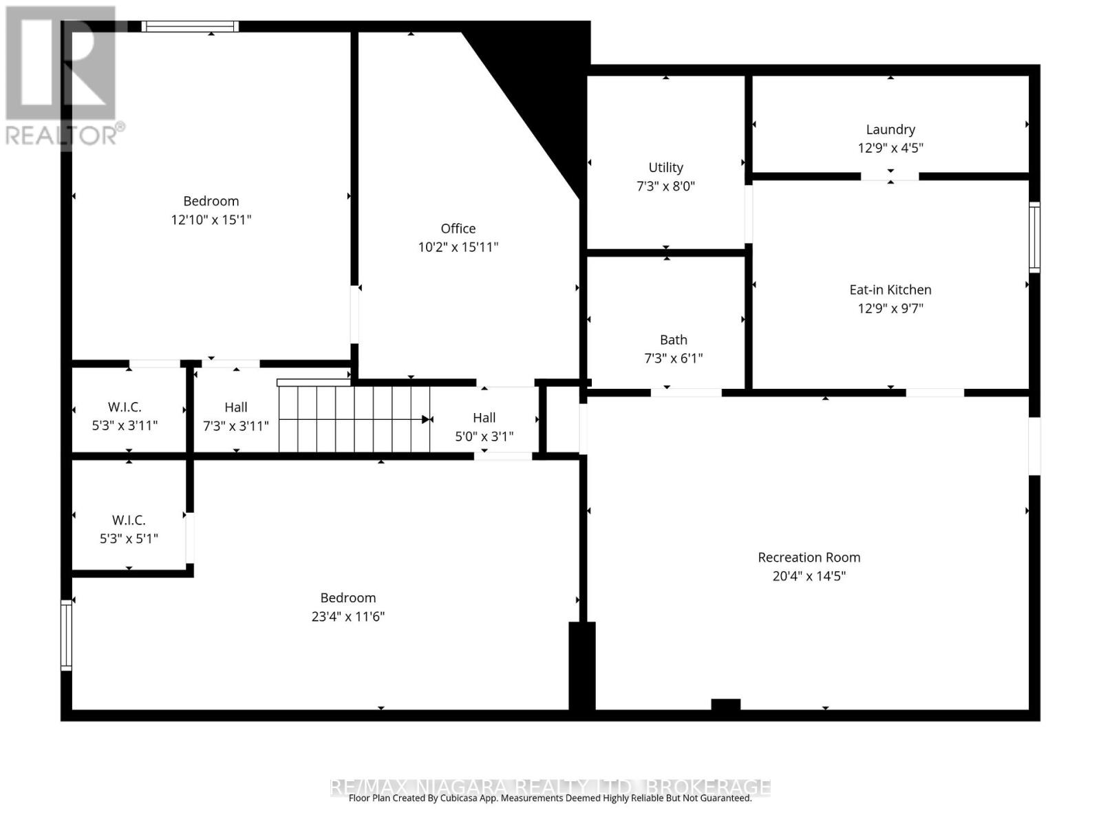
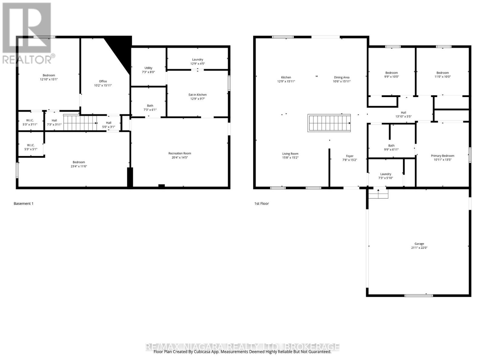
This well maintained bungalow sits on a beautiful, spacious lot in the heart of Fonthill. The bright, open concept main floor features newer flooring and windows throughout, creating a welcoming and airy living space. The updated kitchen offers granite countertops, a center island, and seamless flow into the dining and living areas, perfect for everyday living and entertaining. The main level includes three generously sized bedrooms, including a primary bedroom with ensuite access, as well as the convenience of main floor laundry. Patio doors off the dining area lead to the fully fenced backyard, where you will find a patio with pergola, ideal for relaxing or hosting family and friends. The lower level offers exceptional versatility. The main home has access to a rec room and office, while a separate entrance leads to a self contained one bedroom in law suite complete with its own kitchen, living area, three piece bathroom, and laundry. This space is ideal for extended family, guests, or potential income. Additional features include a large driveway, double garage, and a Level 2 electric vehicle charger, offering modern convenience and functionality.
Property Specifications
Comprehensive breakdown of features and details.
Interior Details
Building & Exterior
Land & Location
Listing & Financials
Other Specifications
For Sale
$899,900
Beds
4
Baths
2
Living Area
-
Lot Size
-
Property Type
House
Year Built
-