
Vacant Land For Sale
$399,000
MLS® Number: X12655760
Bedrooms
0
Bathrooms
0
Vacant Land For Sale
$399,000
Bedrooms
0
Bathrooms
0
228A CONNAUGHT STREET, Kitchener, Ontario
About This Property
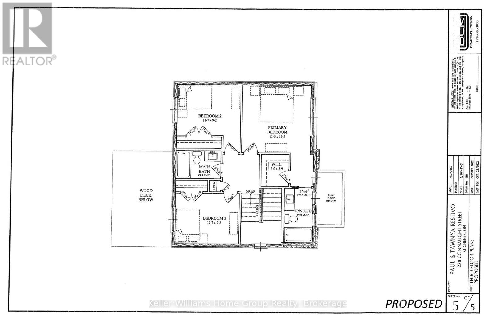
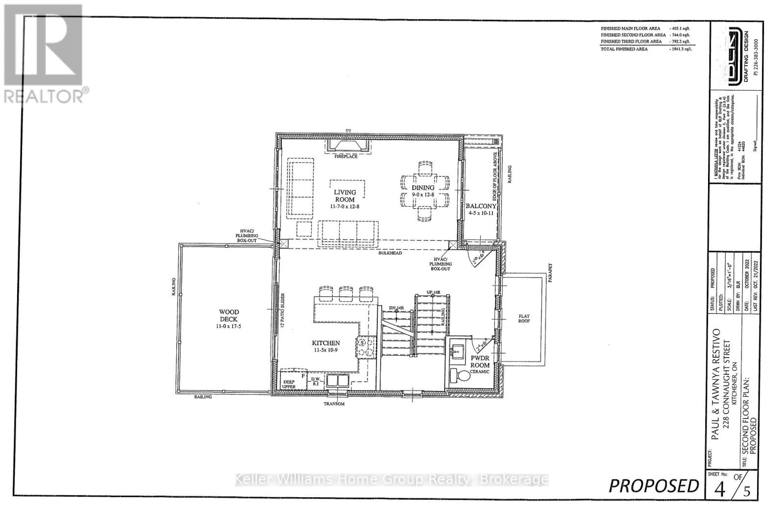
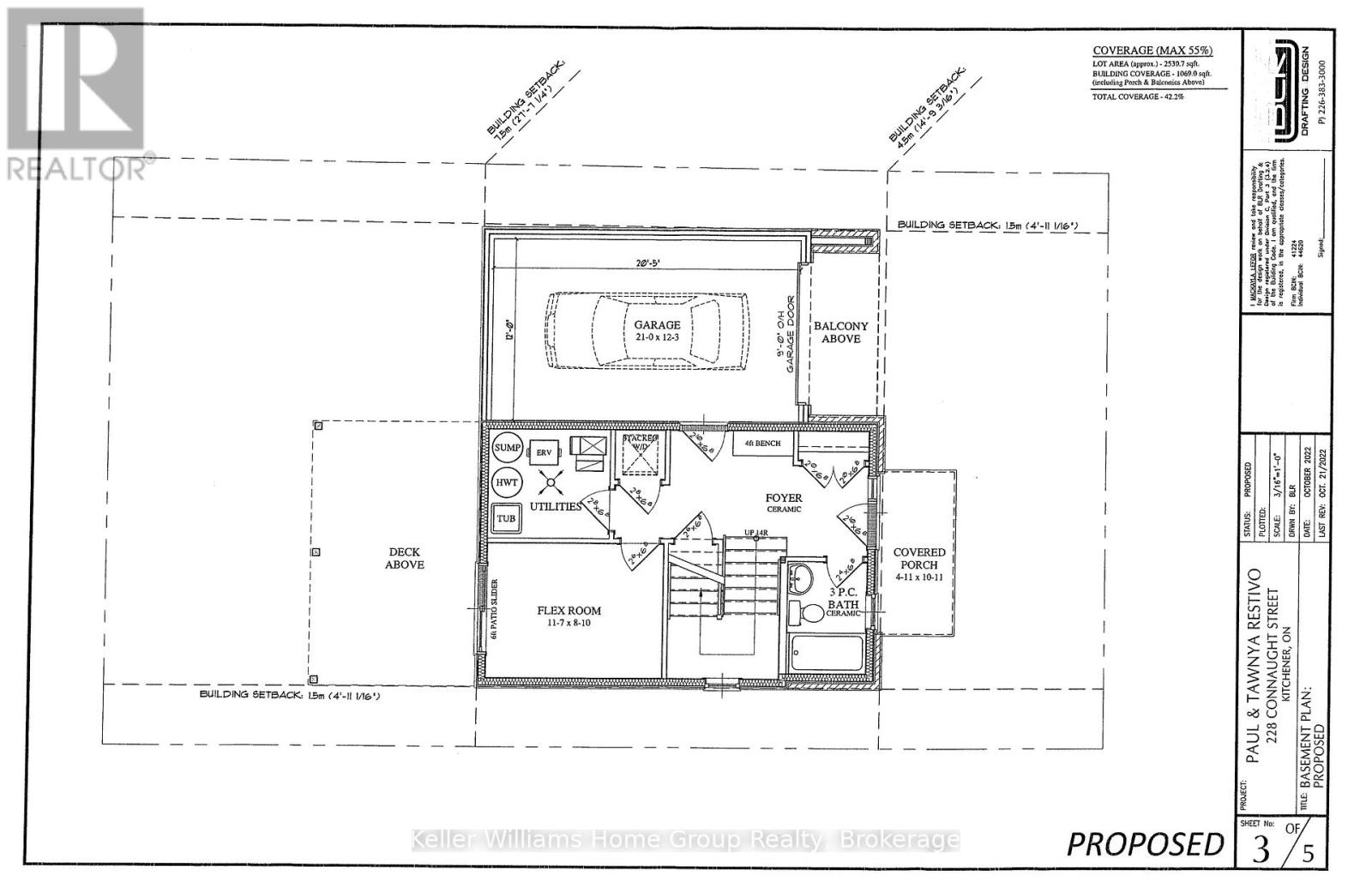
Prime Vacant lot in the Wilson Park area, close to Kingdales Community Centre, Wilson Ave Public School and Holy Trinity Church are all just a stone's throw away. This is a great opportunity to build your custom home in a nice mature neighbourhood. This vacant building lot offers the chance to build your new home in a mature, established neighbourhood. See plans for a 3 level, 3 bedroom, 3.5 bathroom contemporary style home that would be ideal on this lot or choose your own design and style to suit your needs.
Property Details
Interior Details
Bathrooms Total
0
Bedrooms Total
0
Cooling
None
Heating
Other
Land & Location
Frontage Length
38.0 feet
Lot Size Dimensions
38 x 66 FT
Postal Code
N2C1B3
Utilities & Services
Utilities
Sewer, Electricity, Cable
Listing & Financials
Listing Office
Keller Williams Home Group Realty
Originating System Name
OnePoint Association of REALTORS®
Other Specifications
Co List Agent National Association Id2
1365788
Co List Agent National Association Id3
1474137
Co List Office National Association Id2
1430565
Co List Office National Association Id3
1231499
Country
Canada
Listed By
Keller Williams Home Group Realty
Mortgage Calculator
Estimated Monthly Payment
$1,960
Principal and interest only. Actual rates may vary.
Mortgage Calculator
Estimated Monthly Payment
$1,960
Principal and interest only. Actual rates may vary.