
House For Sale
$528,800
MLS® Number: SK025973
Bedrooms
2
Bathrooms
1
Floor Area
1,092
Land Size
0.46
Year Built
2025
House For Sale
$528,800
Bedrooms
2
Bathrooms
1
Floor Area
1,092
Land Size
0.46
Year Built
2025
78 Sunset Acres ROAD, Last Mountain Lake East Side, Saskatchewan
About This Property
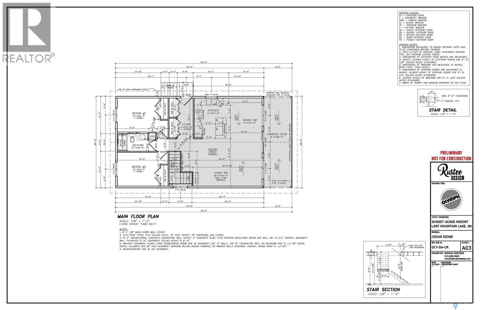
This four-season marina lot bungalow is now ready for immediate possession. Located at Sunset Acres Resort on the East shore of Last Mountain Lake, this development features a marina, 120’ concrete boat launch, and a large beach area. The 1092 sq. ft. main floor features 2 bedrooms, 1 bathroom, and a huge open living space. The kitchen provides plenty of storage space. An appliance package is negotiable. The waterfront side of the home features an impressive covered deck for a deck off of the main living space. Large windows provide sweeping views of the lake and beyond. This home sits on a full concrete walk-out basement, with rough-in plumbing and ready for your personal development touch. There is plenty of space for additional bedrooms, a games room, office space, movie room, or whatever your lifestyle requires. A hi-efficient forced air natural gas furnace and natural gas water heater complete this level. With a large lot, 75’ x 269’ in size, there is plenty of room for a future garage. https://sunsetacres.com/ Contact your REALTOR® today for more information.
Property Details
Interior Details
Basement
Unfinished, Full, Walk out
Bathrooms Total
1
Bedrooms Total
2
Heating
Forced air, Natural gas
Living Area
1092 sqft
Building & Exterior
Architectural Style
Bungalow
Parking Features
None, Parking Space(s), Gravel
Year Built
2025
Land & Location
City Region
Last Mountain Lake
Frontage Length
75.0 feet
Lot Features
Rectangular, Recreational
Lot Size Area
0.46 acres
Lot Size Dimensions
0.46
Postal Code
S0G0Z0
Listing & Financials
Listing Office
RE/MAX Crown Real Estate
Originating System Name
Saskatchewan REALTORS® Association
Other Specifications
Common Interest
Freehold
Country
Canada
Waterfront Features
Waterfront
Listed By
RE/MAX Crown Real Estate
Mortgage Calculator
Estimated Monthly Payment
$2,598
Principal and interest only. Actual rates may vary.
Mortgage Calculator
Estimated Monthly Payment
$2,598
Principal and interest only. Actual rates may vary.