317 - 1200 THE ESPLANADE NORTH ROAD, Pickering (Town Centre), Ontario L1V6V3

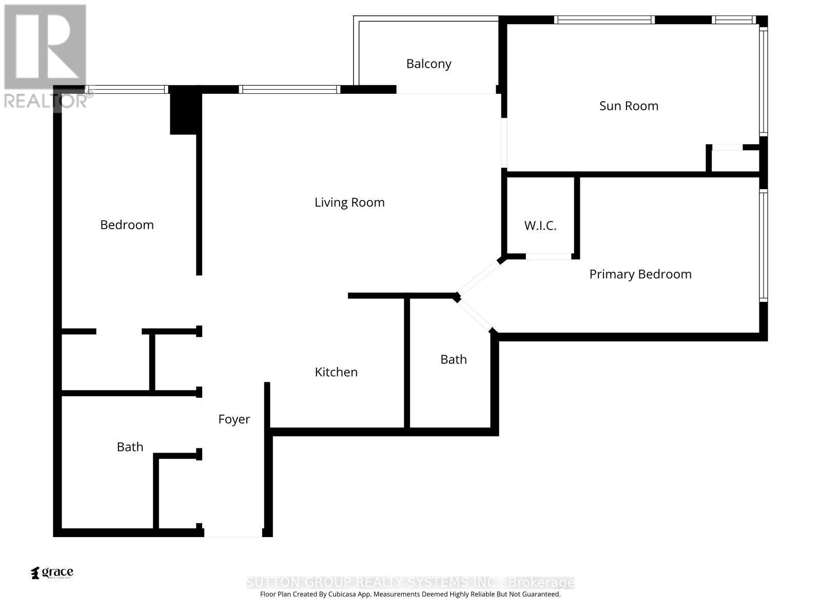
2+Huge Den! Welcome to the Tridel Community-one of Pickering's most sought after buildings, perfectly situated in an unbeatable walkable location. Just steps from the Shops at Pickering City Centre, Go Transit and the Recreation Centre, this beautiful & sunny west-facing corner suite features a great layout with 2 Bedrooms Plus Huge Den Could Be a Great Guest Bedroom and 2 bathrooms with Ensuite-laundry and convenient underground parking and a separate storage unit. This home with 1000 sq.ft has been completely renovated featuring a galley-style kitchen with granite countertops, brand new stainless-steel appliances, freshly painted cabinets with new hardware. Both bathrooms have also been updated with new paint, light fixtures, stylish mirror and rain shower head. complemented by newer tile floors. The bedrooms feature new ceiling lighting and high-quality waterproof laminate floors. The main hall closet has been updated with new mirror doors and tile floors and the whole condo has been freshly painted including doors and baseboards. The open concept layout with large windows in every room make this home bright and airy providing access to an open balcony for outdoor enjoyment. The building itself is exceptionally maintained and offers an impressive range of amenities, including a party room with kitchenette, an entertainment lounge for games, billiards and ping pong facilities, a library, fitness Centre, saunas in the change rooms, an outdoor pool, and a patio equipped with BBQ areas. Additional conveniences include a car wash station, bike storage, around the clock gated security, and plenty of visitor parking. Located just minutes from Highway 401, this residence presents a wonderful opportunity to enjoy vibrant, amenity rich living in the heart of Pickering. Move in and experience a lifestyle defined by comfort, convenience, and community.
Property Specifications
Comprehensive breakdown of features and details.
Interior Details
Building & Exterior
Land & Location
Listing & Financials
Other Specifications
For Sale
$629,999
Beds
3
Baths
2
Living Area
-
Lot Size
-
Property Type
Apartment
Year Built
-