93 Monaghan, Moncton, New Brunswick E1A6H8

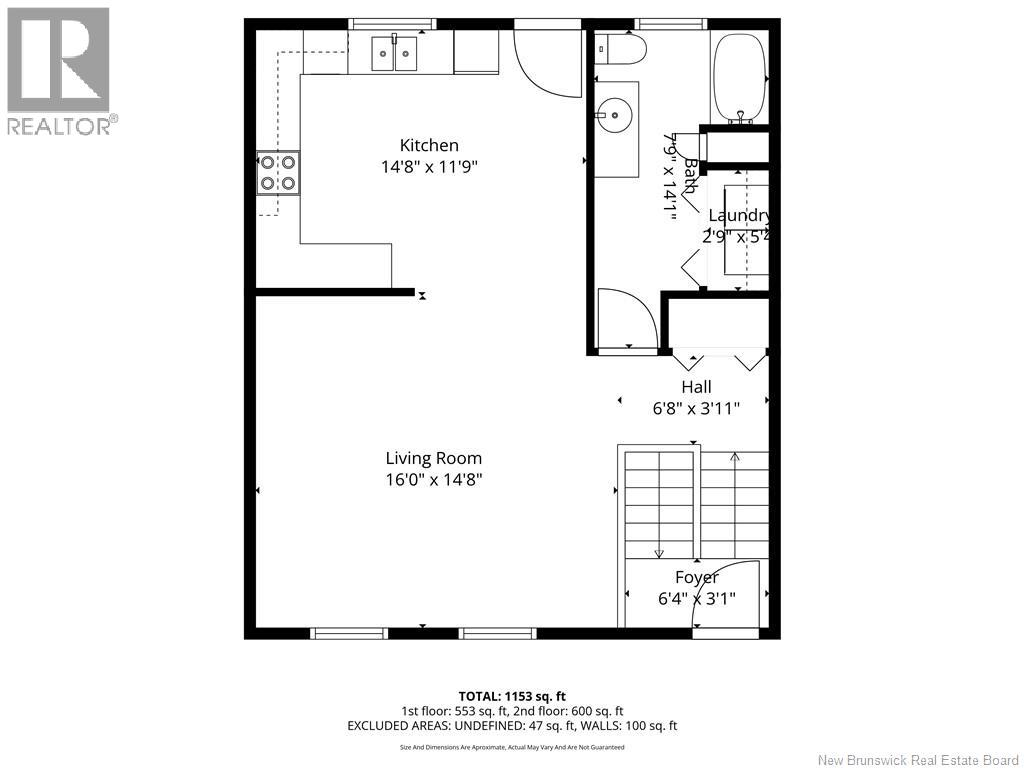
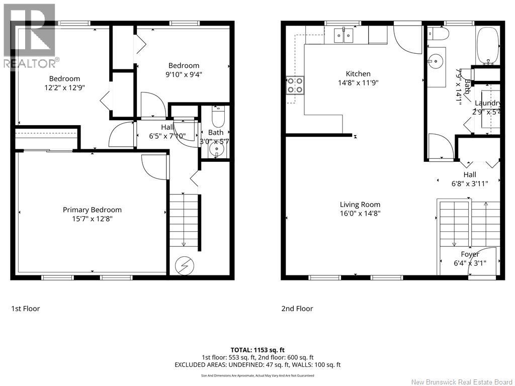
You wont want to miss this charming semi-detached home located on Monaghan Road in Moncton. From the moment you arrive, youll appreciate the inviting exterior features, including a fully fenced backyard, baby barn, large deck, and plenty of space for outdoor enjoyment. Step inside the front entrance, where you have the option to head upstairs or downstairs. Lets start upstairs, where youll find a convenient double closet and a four-piece bathroom with laundry. The spacious living room offers a comfortable place to relax, while the kitchen features plenty of cabinetry and direct access to the back deckperfect for entertaining or enjoying the outdoors. Downstairs, the home offers three well-sized bedrooms and a half bathroom, providing functional and comfortable living space for the whole family. Taxes are based on non owner occupied! For more details or to book a showing, give us a callthis one is truly a must-see!
Property Specifications
Comprehensive breakdown of features and details.
Interior Details
Building & Exterior
Land & Location
Listing & Financials
Other Specifications
For Sale
$279,900
Beds
3
Baths
2
Living Area
1,153 sqft
Lot Size
401 square meters
Property Type
Single Family
Year Built
-