1801 MCARA STREET, Regina, Saskatchewan S4N6C6

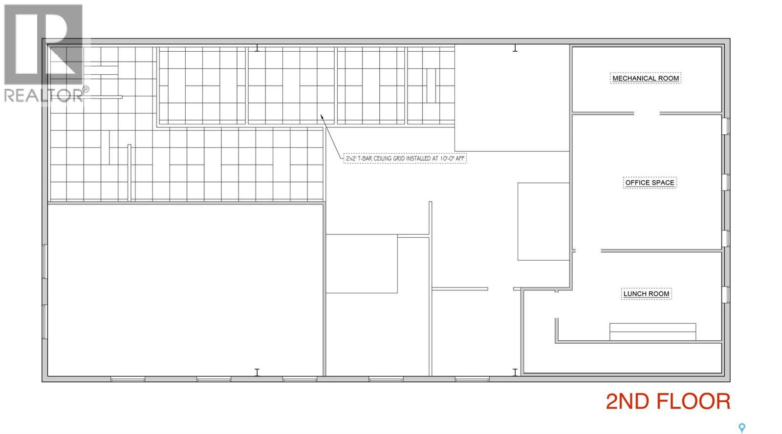
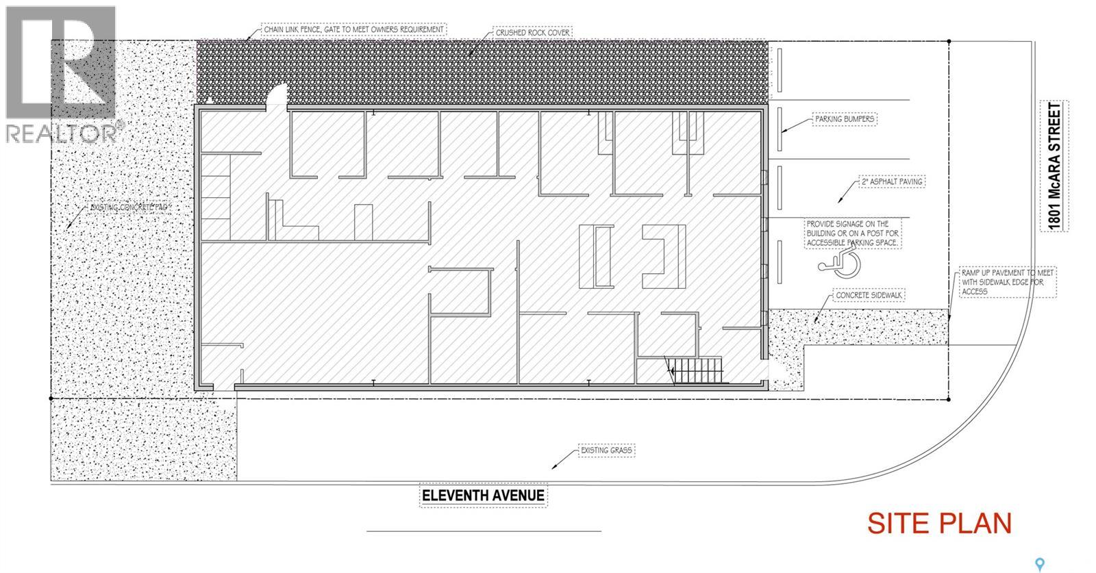
Rare and exceptional opportunity to acquire a turnkey commercial property in the highly desirable Industrial Tuxedo area of Regina. Situated on a prominent corner lot of McAra street between Dewdney and Victoria Avenue, this approximately 4,000 sq. ft. building offers a unique blend of industrial durability and modern finish. Originally a light industrial warehouse, the property underwent an extensive renovation in 2018, transforming it into a high-quality facility currently configured as a veterinary clinic. The space is immaculately maintained and features a versatile layout that transitions seamlessly to professional offices, a medical clinic, or a specialized retail showroom. The ground floor provides ample operational space in forms of office and exam rooms, while the bonus second floor adds significant value, perfect for a private staff lounge, executive offices, a boardroom, or a dedicated breakout area. With its modernized infrastructure and flexible zoning potential, this property is a rare find ready for immediate occupancy or easy conversion. Due to nature of business, the owner requests all showings to be in evenings after 7:15 PM or weekends.
Property Specifications
Comprehensive breakdown of features and details.
Interior Details
Building & Exterior
Land & Location
Listing & Financials
Other Specifications
For Sale
$1,199,999
Beds
-
Baths
-
Living Area
4,002 sqft
Lot Size
0.14 acres
Property Type
Offices
Year Built
1982