
House For Sale
$599,000
MLS® Number: 10371522
Bedrooms
5
Bathrooms
3
Floor Area
3,380
Land Size
0.16
Year Built
1986
House For Sale
$599,000
Bedrooms
5
Bathrooms
3
Floor Area
3,380
Land Size
0.16
Year Built
1986
2952 Clapperton Avenue, Merritt, British Columbia
About This Property
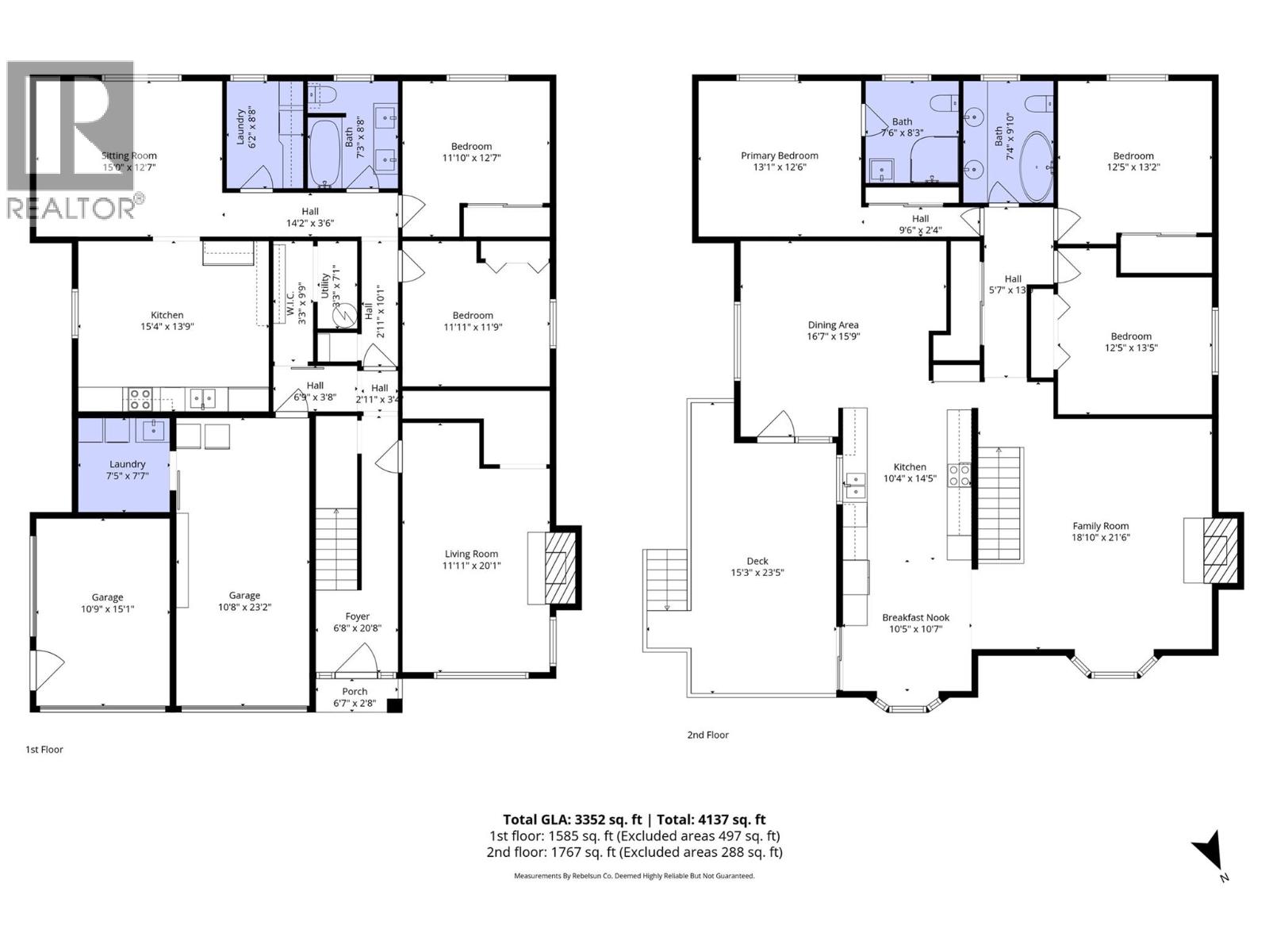
Exceptional opportunity for multi-generational living or investment, this substantially updated 3,380 sq ft home offers space, privacy, & a fully self-contained 2 BR suite. With 5 bedrooms and expansive living areas, the layout allows families to live together, yet separately, making it ideal for in-laws/tenants downstairs while the main family enjoys the upper level & Fam rm down. The main home features a bright open kitchen and dining area, both w/ access onto the deck, large living & family rooms, a spacious primary bedroom with 3-piece ensuite, and a 4-piece main bath. The suite has 2 bedrooms, a 5-piece bathroom & its own laundry room w/ sink. Substantially renovated 2021 through 2025, upgrades include a new kitchens, flooring, bathroom improvements, wiring /some plumbing upgrades & a new laundry room. The home is move-in ready & includes all appliances for both the main home and suite, plus water softener. Cozy wood-burning fireplaces are featured up and down, plus a wood stove insert in the basement family room. Outside, enjoy a fully landscaped/fenced private backyard, new sundeck, irrigated raised garden beds, insulated/wired 9x12 storage shed, and a charming fish pond w/ new liner & pump in the front yard. A large double garage provides excellent parking and workshop space. Efficient on-demand hot water heating supplies both heat and hot water in one system. A rare and versatile property offering comfort, independence, and long-term investment value.
Property Details
Interior Details
Appliances
Oven - Built-In
Bathrooms Partial
0
Bathrooms Total
3
Bedrooms Total
5
Fireplace Features
Wood, Conventional
Fireplace
True
Fireplaces Total
2
Flooring
Laminate, Vinyl
Heating
Baseboard heaters, See remarks, Hot Water
Living Area
3380 sqft
Building & Exterior
Exterior Features
Brick, Vinyl siding
Parking Features
Attached Garage, RV
Stories
2.0
Year Built
1986
Land & Location
City Region
Merritt
Community Features
Family Oriented
Lot Features
Level lot
Lot Size Area
0.16 acres
Lot Size Dimensions
0.16
Parcel Number
002-997-029
Postal Code
V1K1G2
Utilities & Services
Utilities
Water, Sewer, Natural Gas, Electricity, Telephone
Listing & Financials
Listing Office
eXp Realty (Kamloops)
Originating System Name
Association of Interior REALTORS®
Other Specifications
Common Interest
Freehold
Country
Canada
Parking Total
6
Listed By
eXp Realty (Kamloops)
Mortgage Calculator
Estimated Monthly Payment
$2,943
Principal and interest only. Actual rates may vary.
Mortgage Calculator
Estimated Monthly Payment
$2,943
Principal and interest only. Actual rates may vary.