3694 Dill Lake Road, Greater Sudbury, Ontario P3E4N1

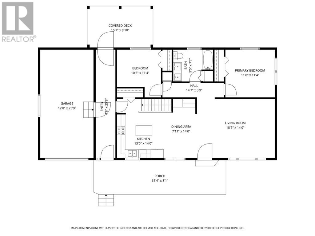
Enjoy true country living with privacy on just over 7 acres, while still being 10 minutes from town, the perfect blend of space and convenience. This solid all brick bungalow features a brand new kitchen with open concept flow to the dining and living areas, ideal for everyday living and gatherings. A charming front porch offers a peaceful spot to enjoy your morning coffee and the surrounding nature. The main level includes two spacious bedrooms and a full bathroom. Downstairs is warm and inviting, an ideal entertainer's retreat featuring a pellet stove in the recroom for cozy evenings, a full bar area with fridge, an oversized recreation space, and additional bedroom, a second bathroom, a dedicated office/desk area, and a laundry room. Outside this property truly shines with an attached garage and breezeway, plus a substantial 39' x 26' detached garage with lean to, a woodshed and a separate driveway, perfect for storing toys, equipment, or creating a workshop. With multiple outbuildings and a functional layout, there's plenty of room for hobbies, projects or a home based business. This well laid out rural property offers space, privacy, warmth, and versatility, and is ready for you to make it home .
Property Specifications
Comprehensive breakdown of features and details.
Interior Details
Building & Exterior
Listing & Financials
Other Specifications
For Sale
$595,900
Beds
3
Baths
2
Living Area
-
Lot Size
-
Property Type
House
Year Built
-