210 SPRUCE DRIVE, West Grey, Ontario N4N3B8

1 / 23
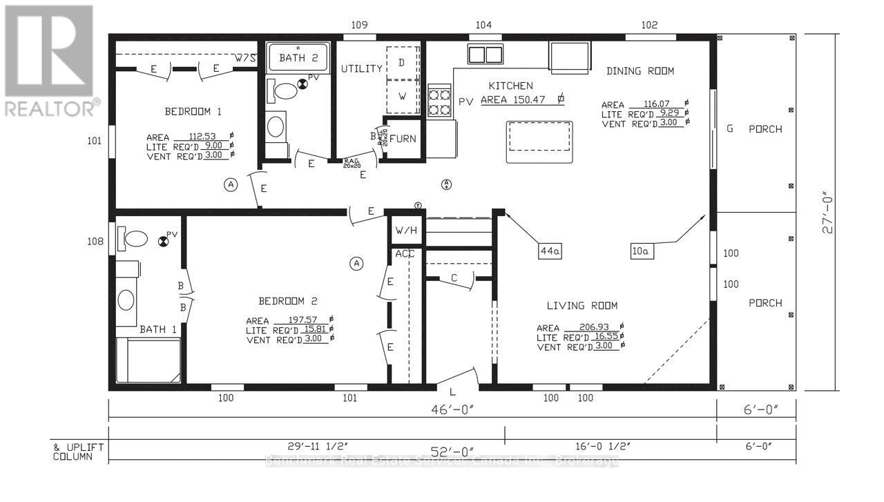
Welcome to the Albany model located on lot 210 in White Tail Modular Home Park. Country living, just minutes from Hanover. Featuring 2 bedrooms and 2 full bathrooms, the large open concept design features a gourmet style kitchen with island and stainless steel appliances. The master suite offers an oversized walk in closet and ensuite. There is also a second bedroom, bathroom and laundry room. Perfect for retiring or first time home owners. This home comes with a 30 year land lease and a builder warranty. Paved driveway is included in the price. Buyer can build a single car garage and/or tool shed at their expense.
Property Specifications
Comprehensive breakdown of features and details.
Interior Details
AppliancesWasher, Refrigerator, Dishwasher, Stove, Dryer, Microwave, Window Coverings, Water Heater
BasementNone
Bathrooms Total2
Bedrooms Total2
CoolingCentral air conditioning
HeatingForced air, Natural gas
Building & Exterior
Architectural StyleBungalow
Exterior FeaturesVinyl siding
Foundation DetailsSlab
Parking FeaturesNo Garage
Stories1.0
Land & Location
City RegionWest Grey
Frontage Length60.0 feet
Lot FeaturesIrregular lot size
Lot Size Dimensions60 x 120 FT ; 60 x 85 x 97 x 120
Utilities & Services
UtilitiesElectricity, Cable
Listing & Financials
Association Fee$595
Association Fee FrequencyMonthly
Association Fee IncludesParcel of Tied Land
Listing OfficeBenchmark Real Estate Services Canada Inc.
Originating System NameOnePoint Association of REALTORS®
Other Specifications
Common InterestLeasehold
CountryCanada
Parking Total4
For Sale
$439,900
210 SPRUCE DRIVE, West Grey, Ontario N4N3B8
Beds
2
Baths
2
Living Area
-
Lot Size
-
Property Type
House
Year Built
-
Listing IDX12662196
Similar Homes You May Like
More Real Estate in Ontario
Ajax Real EstateBarrie Real EstateBrampton Real EstateGuelph Real EstateHamilton Real EstateKitchener Real EstateLondon Real EstateMarkham Real EstateMississauga Real EstateOakville Real EstateOttawa Real EstatePickering Real EstateRichmond Hill Real EstateSt. Catharines Real EstateToronto Real EstateVaughan Real EstateWhitby Real Estate