148 Summerhill Place, Kelowna, British Columbia V1V1T6

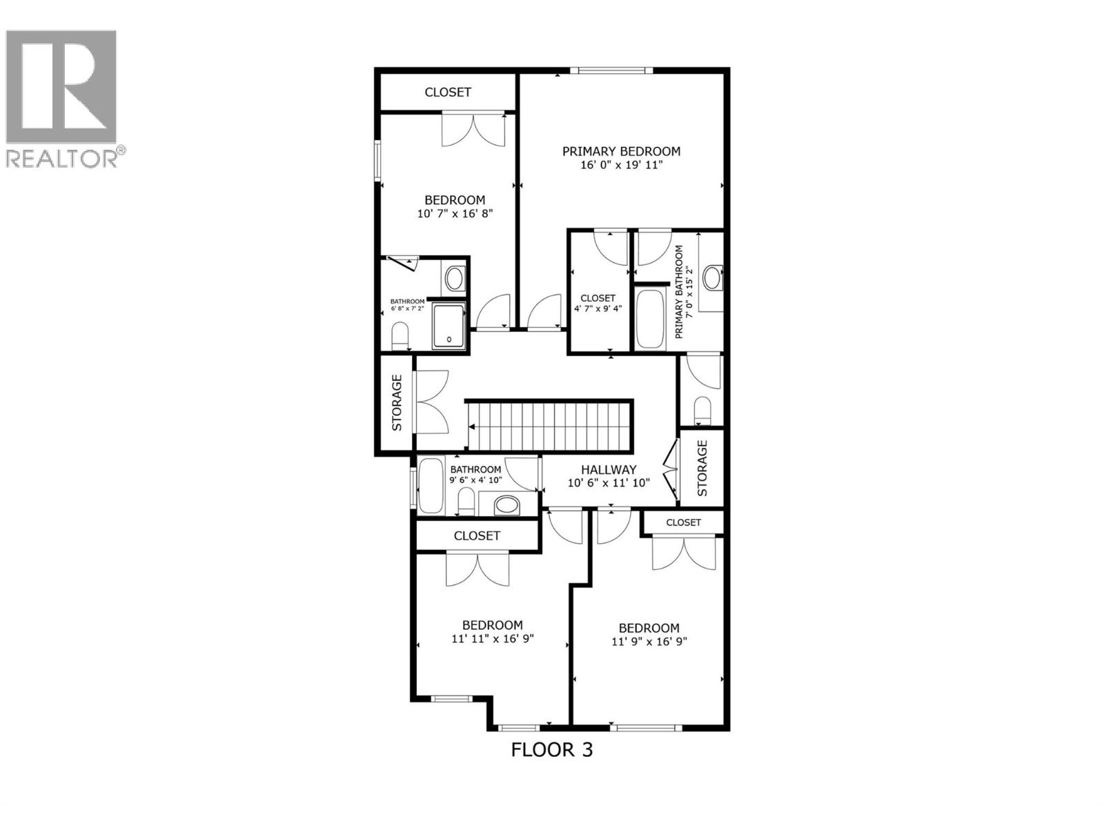
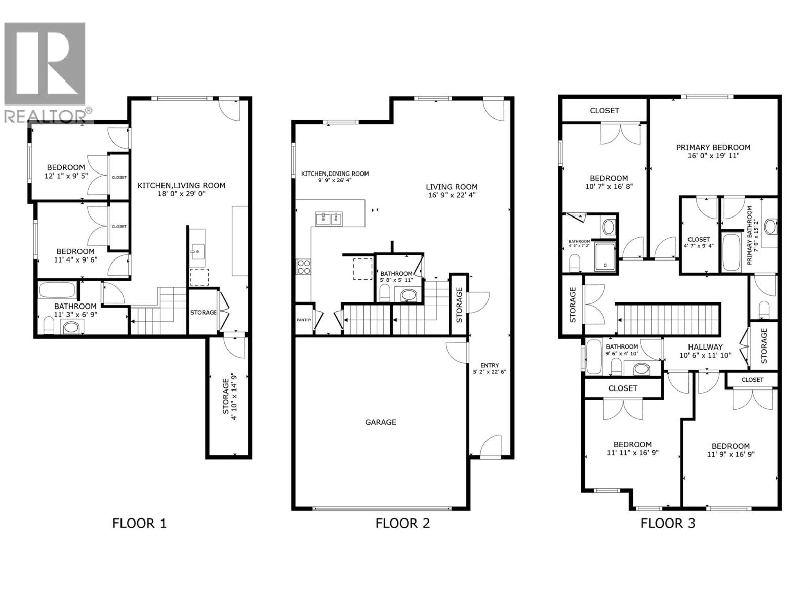
Welcome to 148 Summerhill Place, a beautifully designed 6-bedroom, 5-bathroom duplex offering over 3,000 sq ft of versatile living space in the highly desirable North Glenmore neighbourhood. Nestled on a quiet cul-de-sac, this home is ideal for families, investors, or those seeking comfortable multi-generational living. A thoughtfully planned layout features four spacious bedrooms on the top floor, creating the perfect family-friendly retreat. The main level boasts a bright, open-concept design anchored by an electric fireplace with a custom built-in entertainment unit, seamlessly connecting the living space to a large deck off the living room—ideal for entertaining or unwinding in a peaceful setting. The lower level includes a self-contained 2-bedroom in-law suite with a separate entrance, kitchenette, and covered patio , offering excellent flexibility for extended family or added value. Parking is abundant with approximately four open parking spaces plus a single-car garage, a rare find in this area. Adding to the appeal, the other half of the duplex is also available, presenting a unique opportunity for investors or multi-generational families to secure side-by-side living in one of Kelowna’s most sought-after communities. Close to schools, parks, and everyday amenities, this is North Glenmore living at its finest. All measurements and sizes are approximate; actual dimensions may vary and should be verified by the buyer if deemed important.
Property Specifications
Comprehensive breakdown of features and details.
Interior Details
Building & Exterior
Land & Location
Listing & Financials
Other Specifications
For Sale
$999,000
Beds
6
Baths
5
Living Area
2,950 sqft
Lot Size
0.08 acres
Property Type
Duplex
Year Built
2021