21980 100 AVENUE, Langley, British Columbia V1M3V1

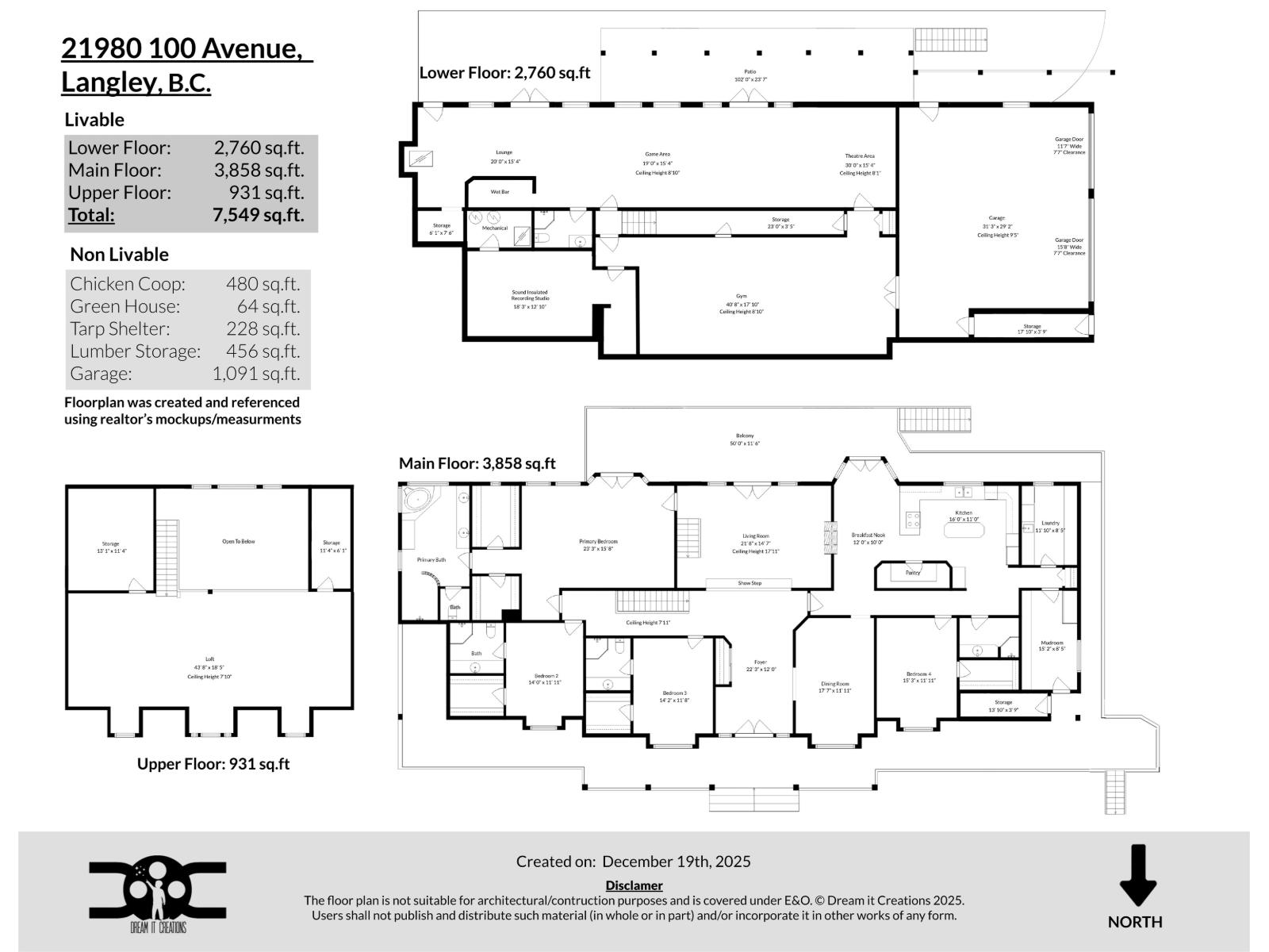
Set back down a long, estate-like drive, this meticulously maintained 7,549 sq/ft residence offers a sanctuary of scale and privacy on 4.2 acres in Fort Langley. The 3,858 sq/ft main floor provides seamless rancher-style living perfect for entertaining, featuring a stately living room with framed views over the creek, an impeccable oak kitchen and a large dining room. The walk-out basement serves as a luxury entertainment wing with a theatre area, pool parlour, wet bar with wood stove, sound-insulated studio, and 45' gym. Recent updates include a newer roof (2022) and newly ducted A/C (2023). The private manicured acreage features 1.35 acres of protected riparian area, easy access to Fort Langley village, waterfront trails, cafes, and restaurants. Quick drive to Hwy 1 east or westbound.
Property Specifications
Comprehensive breakdown of features and details.
Interior Details
Building & Exterior
Land & Location
Utilities & Services
Listing & Financials
Other Specifications
For Sale
$3,400,000
Beds
4
Baths
5
Living Area
7,549 sqft
Lot Size
182,952 sqft
Property Type
House
Year Built
1995