261 Ashcroft Court, Vernon, British Columbia V1H2M1

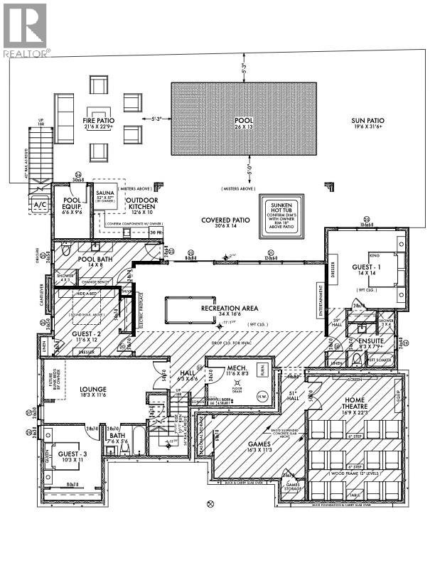
Welcome to 261 Ashcroft Court, an exceptional lot offering a fantastic opportunity to build your dream home. This .24-acre lot represents one of the last walkout option available, making it a rare find in Predator Ridge. The walkout layout is the ideal choice, providing you with endless possibilities to design your home to perfection, or purchase the existing drawings and start building! With ample space, you have the freedom to bring your vision to life and create a residence that suits your lifestyle. Enjoy the luxury of stunning views that are hard to come by. Are you a golfer? Ask your agent about the option to purchase a Predator Ridge golf membership at a great price so you can enjoy more of the game you love! The best part of this memebership? It can even be assigned to a family member, unlike others which have to stay with the lot. Live your best life being steps from the picturesque Predator Ridge golf course and a short drive to Sparkling Hill resort. Don't miss out on this exceptional opportunity – act now to secure this remarkable piece of land!
Property Specifications
Comprehensive breakdown of features and details.
Land & Location
Utilities & Services
Listing & Financials
Other Specifications
For Sale
$550,000
Lot Size
0.24 acres
Property Type
Vacant Land
Year Built
-