3 - 18279 YONGE STREET, East Gwillimbury, Ontario L9N0A2

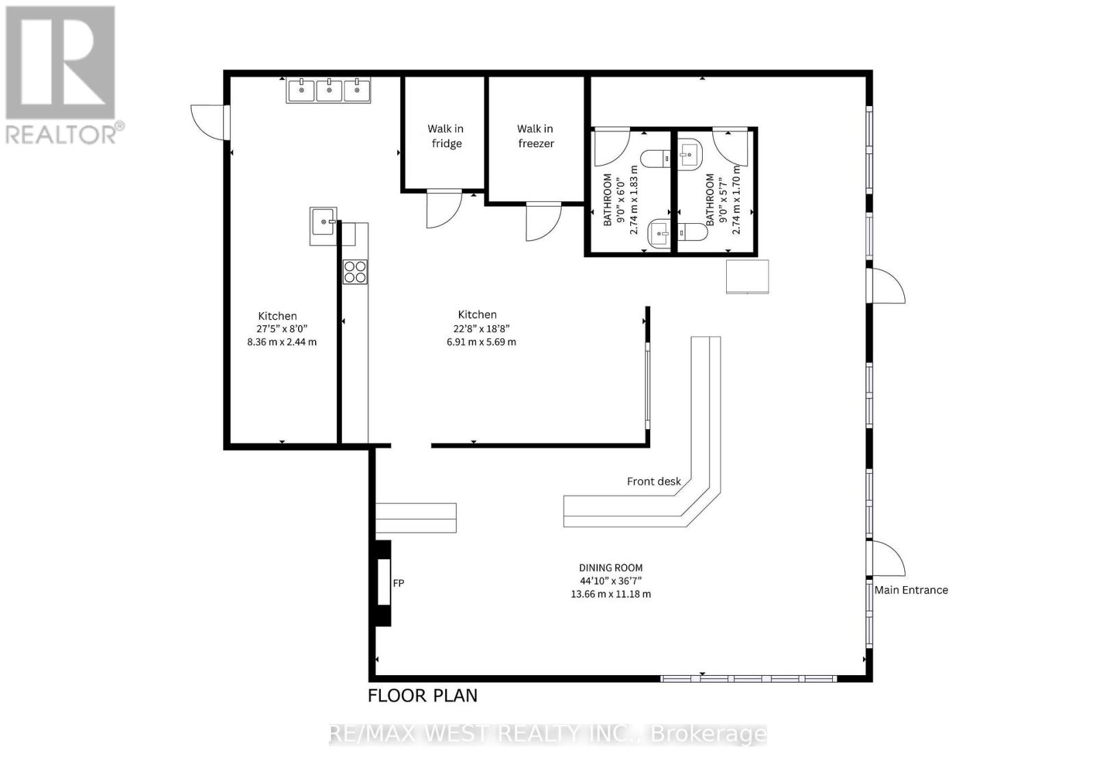
Step into the story of a local legend, an iconic pizza restaurant that has been the heart of its community since 2014. Perfectly positioned on bustling Yonge Street in East Gwillimbury, right on the border of Newmarket, this well-known establishment sits in a high-density plaza surrounded by major anchor businesses that keep foot traffic strong day and night. For over a decade, this pizzeria has served generations of families, students, and loyal regulars who return time and time again for its unforgettable flavours. Behind the scenes lies a fully customized, impeccably maintained kitchen designed for serious production: two commercial hoods (8' and 13'), dual pizza ovens, a walk-in freezer and fridge, dough mixer, topping stations, grills, stove, extensive shelving, and an abundance of prep space. Everything a thriving food operation needs. Whether you envision continuing the legacy of this beloved pizza brand or transforming the space into an entirely new culinary concept, the possibilities are endless. With a long-term lease available, this is a rare opportunity to take over a profitable, turnkey business in one of the most desirable locations north of Toronto. A busy shop with deep roots, a strong reputation, and unlimited potential, waiting for its next owner to step in, take the lead, and elevate it to the next chapter.
Property Specifications
Comprehensive breakdown of features and details.
Interior Details
Land & Location
Listing & Financials
Other Specifications
For Sale
$448,800
Beds
-
Baths
-
Living Area
2,083 sqft
Lot Size
-
Property Type
Business
Year Built
-