2611 12 Avenue NW, Calgary, Alberta T2N1K7

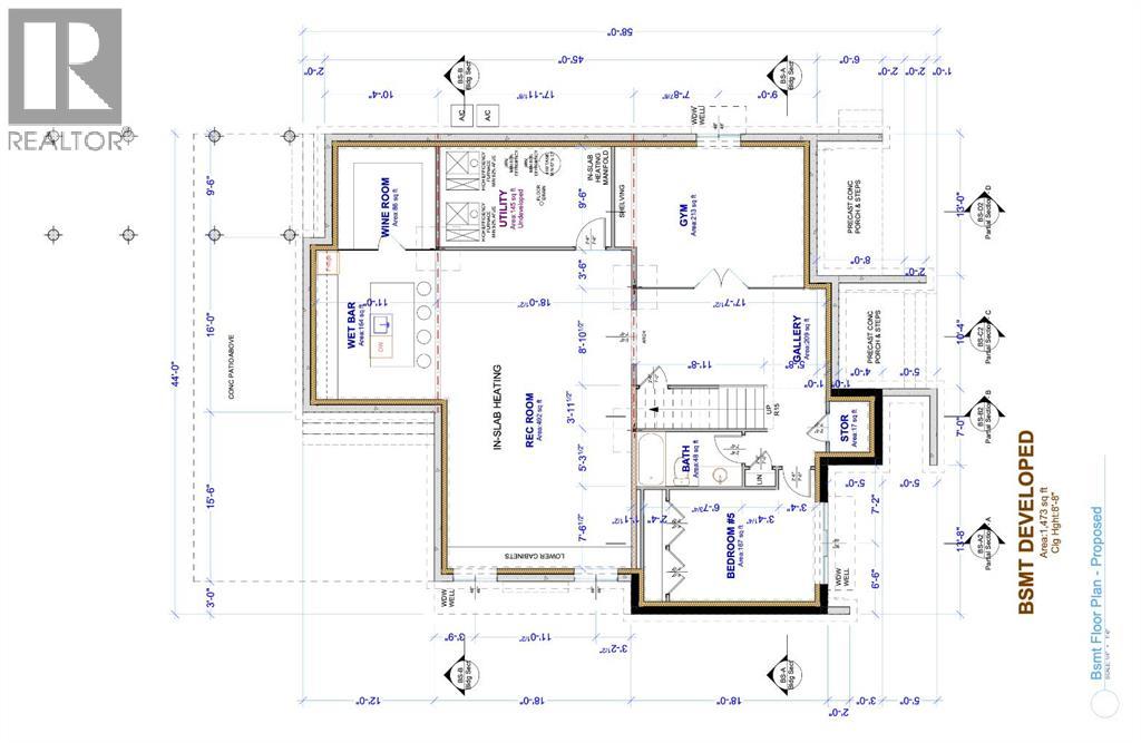
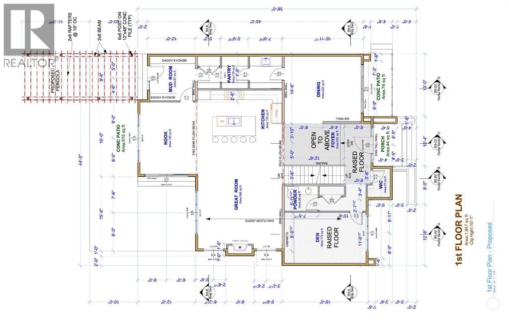
Beautifully crafted luxury living awaits in this brand new two storey home located in the highly sought-after community of St. Andrews Heights. Built by Calton Developments Ltd, this exceptional residence blends timeless elegance with modern urban living, showcasing superior craftsmanship with European inspired high end glass and exterior detailing, and premium materials throughout. Stunning curb appeal welcomes you into a thoughtfully designed centre hall plan featuring a spacious foyer open to above, flanked by a private home office and formal dining room. Custom millwork, exquisite finishes, and gorgeous white oak hardwood floors set the tone for the home’s refined aesthetic. The open concept main living area is perfectly suited for entertaining, anchored by a chef inspired kitchen complete with quartz countertops, custom cabinetry, and premium designer appliances including a panelled Subzero refrigerator and Wolf gas cooktop, microwave, and built-in wall oven. A large centre island overlooks the breakfast nook and the bright, inviting living room, highlighted by a sleek linear gas fireplace framed by windows on either side. A massive walk-through butler’s pantry connects seamlessly to the formal dining room, offering an ideal setup for hosting and serving. The functional mudroom features custom bench seating and hooks and leads directly to the pergola covered patio. Glass panelled rails lead upstairs, a mezzanine overlooks the foyer below and is complemented by a convenient laundry room and four generously sized bedrooms, each with its own ensuite. The primary suite is a true retreat, boasting a luxurious 5pc ensuite with dual vanities, a built-in soaker tub, and a glass enclosed shower with bench, along with a stunning custom walk-in closet complete with an island dresser. The fully developed lower level offers in-floor slab heating and showcases a spacious recreation room with a wet bar, island seating, and beverage fridge, plus an impressive glass enclosed wi ne room sure to delight any enthusiast. A home gym and fifth bedroom complete this level. Enjoy sunny south exposure in the backyard, thoughtfully designed to be an extension of the home’s living space and ideal for both family life and entertaining. The expansive patio offers plenty of room for outdoor dining, summer barbecues, and relaxed evenings with friends. Whether hosting weekend gatherings, celebrating milestones, or simply enjoying quiet mornings outdoors, this private and sun filled setting delivers versatility and comfort with convenient access to the double detached garage. Ideally located, St. Andrews Heights offers close proximity to the Foothills and Alberta Children’s Hospital, scenic pathways and a popular tobogganing hill, McMahon Stadium, the new University District, and the University of Calgary, making this an exceptional opportunity to enjoy luxury living in one of Calgary’s most established and desirable communities.
Property Specifications
Comprehensive breakdown of features and details.
Interior Details
Building & Exterior
Land & Location
Listing & Financials
Other Specifications
For Sale
$2,895,000
Beds
5
Baths
6
Living Area
3,562 sqft
Lot Size
580 square meters
Property Type
House
Year Built
2025