5858/5856 Annsobel Cir, Nanaimo, British Columbia V9V1E1

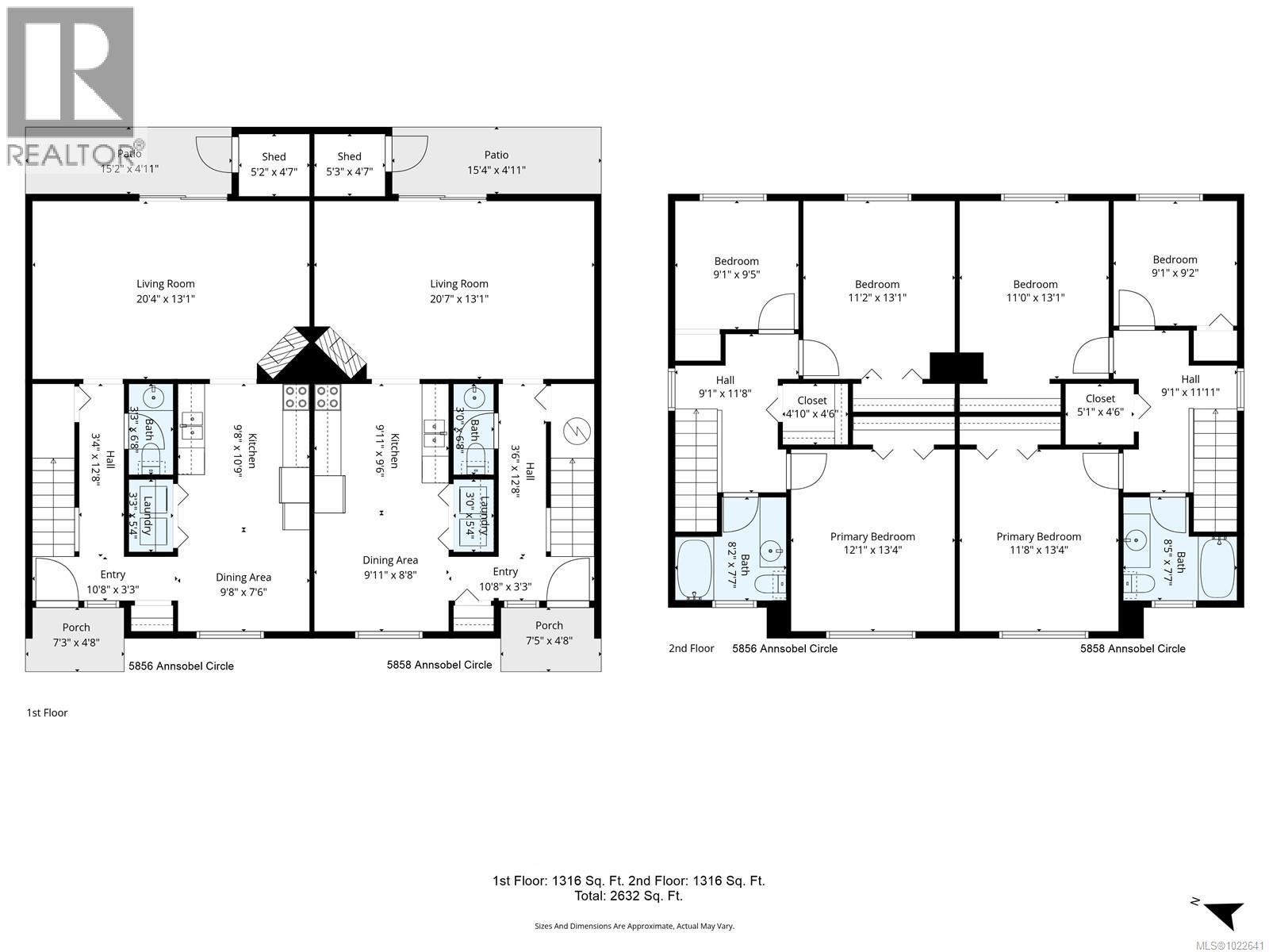
Located in a quiet cul-de-sac in desirable North Nanaimo, this full duplex is close to schools and all amenities and sits on a large 0.36-acre lot (15,816 sq. ft.), offering excellent investment and future development potential. Each side provides approximately 1,316 sq. ft. over two levels, featuring three bedrooms and one and a half bathrooms. The main floor includes a galley-style kitchen with an eat-in dining area, laundry, a two-piece bathroom, and a living room with access to the private rear yard, while the upper level offers three bedrooms and a four-piece bathroom. Both units are currently rented, making this an ideal holding property with steady income and opportunities for further development. All measurements are approximate and data should be verified if important.
Property Specifications
Comprehensive breakdown of features and details.
Interior Details
Building & Exterior
Land & Location
Listing & Financials
Other Specifications
For Sale
$749,900
Beds
6
Baths
4
Living Area
2,632 sqft
Lot Size
15,816 sqft
Property Type
Duplex
Year Built
1980