
House For Sale
$989,900
MLS® Number: 40796412
Bedrooms
4
Bathrooms
3
Floor Area
2,130
House For Sale
$989,900
Bedrooms
4
Bathrooms
3
Floor Area
2,130
56 REDBUD Road, Elmira, Ontario
About This Property
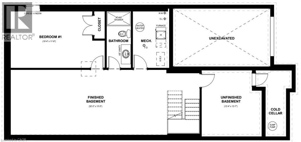
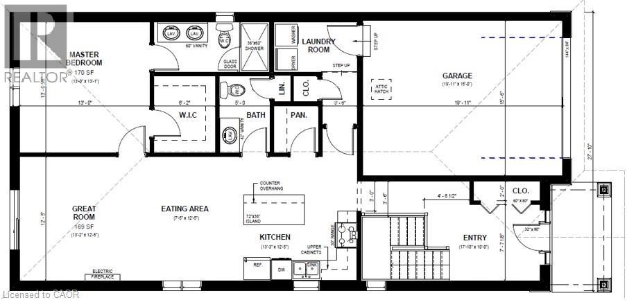
Design your own perfect downsize! Verdone Homes is proud to present this single detached bungalow, west facing backyard backing on farmers field. Welcome to 56 Redbud Rd. in Elmira's Southwood Park Subdivision. This stunning home highlights main floor living at its best with many different layout options to choose from. Enjoy the flexibility of a main floor with 1 or 2 bedrooms and a basement with 1 or 2 bedrooms. All models include a luxurious primary suite with walk in shower, main floor laundry, an eat-in kitchen with custom cabinetry, quartz countertops and a large island. Elmira provides the serenity of small town living with the convenience of a 5 minute drive to Waterloo, close to walking trails, farmland and pickle ball courts. Verdone Homes is a local builder with a reputation of integrity and quality craftmanship and they have pulled out all the stops with this one; partial stone on the exterior, LVP flooring, stone countertops, finished basement, electric fireplace with mantel and built in's, an owned water heater & all Tarion registration fee's included. Act now to make this YOUR dream home. Discounted lots available as well.
Property Details
Interior Details
Appliances
Hood Fan
Basement
Finished, Full
Bathrooms Total
3
Bedrooms Total
4
Cooling
Central air conditioning
Heating
Hot water radiator heat, Forced air, Natural gas
Living Area
2130 sqft
Building & Exterior
Architectural Style
Bungalow
Exterior Features
Brick, Stone
Number Of Units Total
0
Parking Features
Attached Garage
Stories
1.0
Land & Location
Community Features
School Bus, Community Centre
Frontage Length
36.0 feet
Lot Features
Country residential
Postal Code
N3B0G2
Subdivision Name
550 - Elmira
Listing & Financials
Listing Office
Royal LePage Wolle Realty
Originating System Name
Cornerstone Association of REALTORS®
Other Specifications
Common Interest
Freehold
Country
Canada
Parking Total
3
Listed By
Royal LePage Wolle Realty
Mortgage Calculator
Estimated Monthly Payment
$4,863
Principal and interest only. Actual rates may vary.
Mortgage Calculator
Estimated Monthly Payment
$4,863
Principal and interest only. Actual rates may vary.